Woning Jasmijnstraat 15 Den Bosch

Jasmijnstraat 15, 5213HN Den Bosch

Ontvang updates voor Graafsebuurt-Noord

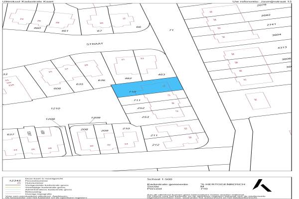
Het adres van deze woning uit 1938 is Jasmijnstraat 15 te Den Bosch. Het pand heeft een oppervlakte van 120m² en een perceeloppervlakte van 197m² en heeft 5 kamers kamers waarvan 4 slaapkamers. De geschatte waarde van deze woning is € 475.000.

Bekijk alle woningen in Graafsebuurt-Noord

Gegevens van Eengezinswoning, hoekwoning

Bouwjaar
1938
Geschatte waarde
€ 475.000
Oppervlakte
120 m2
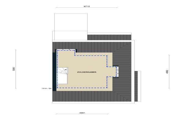
Inhoud
445 m3
Aantal kamers
5 kamers
Slaapkamers
4
Badkamers
1 badkamer en 1 apart toilet
Soort bouw
Bestaande bouw
Eigendomssituatie
Volle eigendom
Ligging
In woonwijk
Tuin
Achtertuin en voortuin
Achtertuin
68 m² (9m diep en 8,5m breed)

Voorzieningen in de buurt

Boodschappen0,4 km
Grote supermarkt0,6 km
Cafetaria0,4 km
Restaurant0,5 km
Huisarts0,7 km
Ziekenhuis4,0 km
Kinderdagverblijf0,6 km
BSO0,5 km
Alle voorzieningen in Graafsebuurt-Noord

Binnenkijken bij Jasmijnstraat 15 te Den Bosch

Meer meldingen in deze omgeving

112 melding
Zondag 4-1-2026 om 11:17
Victorialaan, 's-Hertogenbosch

Nieuw bedrijf
Januari 2026
Lucas van Leydenstraat 80, 5213BB 's-Hertogenbosch

112 melding
Zaterdag 27-12-2025 om 21:49
Graafseweg, 5213AJ 's-Hertogenbosch

Nieuw bedrijf
December 2025
Jasmijnstraat 21, 5213HN 's-Hertogenbosch

Binnenkijken bij
Zaterdag 6-12-2025
Magnoliahof 69, 5213HJ Den Bosch

Nieuw bedrijf
December 2025
Graafseweg 243, 5213AH 's-Hertogenbosch

112 melding
Vrijdag 28-11-2025 om 08:31
Van Grobbendoncklaan, 's-Hertogenbosch

112 melding
Zondag 23-11-2025 om 11:33
Victorialaan, 's-Hertogenbosch

Direct een e-mail ontvangen bij nieuwe meldingen in deze regio?

Meld je dan GRATIS aan voor de Oozo Alert service voor Graafsebuurt-Noord

Instellen

Meer nieuws in Graafsebuurt-Noord

Weten hoe eenvoudig het is om af te vallen? Zonder pillen en smeersels en zonder je in het zweet te werken!
Kijk op eenvoudig-afvallen.nl

© 2012 - 2026 OOZO.nl - info@oozo.nl - Gegevens verwijderen? | Disclaimer | Privacy statement