Woning Pastoor Hoekx-singel 49 Rosmalen

Pastoor Hoekx-singel 49, 5246PB Rosmalen

Ontvang updates voor Hintham-Noord

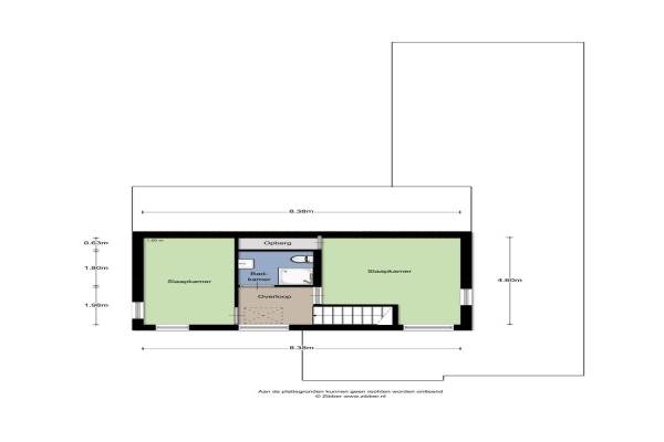
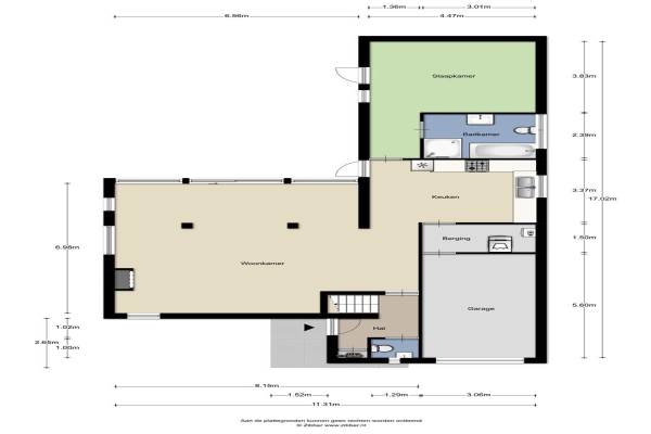
Het adres van deze woning uit 1997 is Pastoor Hoekx-singel 49 te Rosmalen. Het pand heeft een oppervlakte van 146m² en een perceeloppervlakte van 290m² en heeft 4 kamers kamers waarvan 3 slaapkamers. De geschatte waarde van deze woning is € 459.000.

Bekijk alle woningen in Hintham-Noord

Gegevens van Eengezinswoning, vrijstaande woning

Bouwjaar
1997
Geschatte waarde
€ 459.000
Oppervlakte
146 m2
Inhoud
598 m3
Aantal kamers
4 kamers
Slaapkamers
3
Badkamers
2 badkamers en 1 apart toilet
Soort bouw
Bestaande bouw
Eigendomssituatie
Volle eigendom
Ligging
Aan rustige weg, aan water en in woonwijk
Tuin
Voortuin en patio/atrium

Voorzieningen in de buurt

Boodschappen0,9 km
Grote supermarkt0,9 km
Cafetaria0,9 km
Restaurant0,5 km
Huisarts1,0 km
Ziekenhuis3,8 km
Kinderdagverblijf0,5 km
BSO1,1 km
Alle voorzieningen in Hintham-Noord

Binnenkijken bij Pastoor Hoekx-singel 49 te Rosmalen

Meer meldingen in deze omgeving

Binnenkijken bij
Dinsdag 5-5-2026
Pastoor Hoekx-singel 50, 5246PM Rosmalen

Binnenkijken bij
Dinsdag 5-5-2026
Sint Jorisstate 22, 5246TC Rosmalen

Binnenkijken bij
Dinsdag 5-5-2026
Pastoor Hoekx-singel 241, 5246PK Rosmalen

Onroerend goed
Vrijdag 17-4-2026
De Grote Elst 5- 7, 5246JM Rosmalen

Binnenkijken bij
Maandag 13-4-2026
Wilhelminastraat 36, 5246XD Rosmalen

Nieuw bedrijf
April 2026
Sint-Anthoniusstraat 5, 5246AP Rosmalen

Faillissement
Donderdag 9-4-2026
Prins Bernhardstraat 9, 5246XH Rosmalen

Binnenkijken bij
Maandag 6-4-2026
Hintham 4, 5246AG Rosmalen

Direct een e-mail ontvangen bij nieuwe meldingen in deze regio?

Meld je dan GRATIS aan voor de Oozo Alert service voor Hintham-Noord

Instellen

Meer nieuws in Hintham-Noord

Weten hoe eenvoudig het is om af te vallen? Zonder pillen en smeersels en zonder je in het zweet te werken!
Kijk op eenvoudig-afvallen.nl

© 2012 - 2026 OOZO.nl - info@oozo.nl - Gegevens verwijderen? | Disclaimer | Privacy statement