Woning Joseph Knipstraat 23 Rosmalen

Joseph Knipstraat 23, 5246EG Rosmalen

Ontvang updates voor Hintham-Zuid

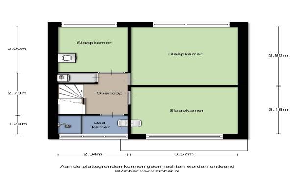
Het adres van deze woning uit 1965 is Joseph Knipstraat 23 te Rosmalen. Het pand heeft een oppervlakte van 95m² en een perceeloppervlakte van 170m² en heeft 4 kamers kamers waarvan 3 slaapkamers. De geschatte waarde van deze woning is € 234.000.

Bekijk alle woningen in Hintham-Zuid

Gegevens van Eengezinswoning, eindwoning

Bouwjaar
1965
Geschatte waarde
€ 234.000
Oppervlakte
95 m2
Inhoud
285 m3
Aantal kamers
4 kamers
Slaapkamers
3
Badkamers
1 badkamer en 1 apart toilet
Soort bouw
Bestaande bouw
Eigendomssituatie
Volle eigendom
Ligging
Aan rustige weg en in woonwijk
Tuin
Achtertuin en voortuin
Achtertuin
72 m² (11,5m diep en 6,25m breed)

Voorzieningen in de buurt

Boodschappen0,6 km
Grote supermarkt0,5 km
Cafetaria0,5 km
Restaurant0,7 km
Huisarts0,5 km
Ziekenhuis3,9 km
Kinderdagverblijf0,4 km
BSO0,5 km
Alle voorzieningen in Hintham-Zuid

Binnenkijken bij Joseph Knipstraat 23 te Rosmalen

Meer meldingen in deze omgeving

Nieuw bedrijf
December 2025
Ernst Bagelaarstraat 11, 5246VM ROSMALEN

Nieuw bedrijf
December 2025
Fort Prins Willem 48, 5246BB Rosmalen

Nieuw bedrijf
December 2025
Jan Heijmanslaan 1B, 5246BH Rosmalen

Binnenkijken bij
Donderdag 11-12-2025
Joseph Knipstraat 25, 5246EG Rosmalen

Nieuw bedrijf
December 2025
Pastoor van Thiellaan 58, 5246BS Rosmalen

112 melding
Maandag 8-12-2025 om 19:54
Herman Moerkerklaan, Rosmalen

112 melding
Zondag 7-12-2025 om 14:17
De Engstoep, 5246BD Rosmalen

Binnenkijken bij
Zondag 7-12-2025
Jan Heijmanslaan 17, 5246BH Rosmalen

Direct een e-mail ontvangen bij nieuwe meldingen in deze regio?

Meld je dan GRATIS aan voor de Oozo Alert service voor Hintham-Zuid

Instellen

Meer nieuws in Hintham-Zuid

Weten hoe eenvoudig het is om af te vallen? Zonder pillen en smeersels en zonder je in het zweet te werken!
Kijk op eenvoudig-afvallen.nl

© 2012 - 2025 OOZO.nl - info@oozo.nl - Gegevens verwijderen? | Disclaimer | Privacy statement