Woning Koningshoeven 13 Den Bosch

Koningshoeven 13, 5235BW Den Bosch

Ontvang updates voor Abdijenbuurt

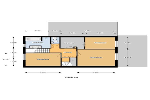
Het adres van deze woning uit 1979 is Koningshoeven 13 te Den Bosch. Het pand heeft een oppervlakte van 172m² en een perceeloppervlakte van 326m² en heeft 6 kamers kamers waarvan 5 slaapkamers. De geschatte waarde van deze woning is € 348.500.

Bekijk alle woningen in Abdijenbuurt

Gegevens van Eengezinswoning, 2-onder-1-kapwoning

Bouwjaar
1979
Geschatte waarde
€ 348.500
Oppervlakte
172 m2
Inhoud
600 m3
Aantal kamers
6 kamers
Slaapkamers
5
Badkamers
1 badkamer en 2 aparte toiletten
Soort bouw
Bestaande bouw
Eigendomssituatie
Volle eigendom
Ligging
In woonwijk
Tuin
Achtertuin en voortuin
Achtertuin
135 m² (15m diep en 9m breed)

Voorzieningen in de buurt

Boodschappen0,5 km
Grote supermarkt0,5 km
Cafetaria0,5 km
Restaurant0,4 km
Huisarts0,5 km
Ziekenhuis0,6 km
Kinderdagverblijf0,3 km
BSO0,3 km
Alle voorzieningen in Abdijenbuurt

Binnenkijken bij Koningshoeven 13 te Den Bosch

Meer meldingen in deze omgeving

Nieuw bedrijf
December 2025
Hofstedenlaan 47, 5235CM 's-Hertogenbosch

Binnenkijken bij
Woensdag 3-12-2025
Seldensate 3, 5235CA Den Bosch

112 melding
Woensdag 3-12-2025 om 01:46
Seldensate, 's-Hertogenbosch

112 melding
Woensdag 3-12-2025 om 01:46
Seldensate, 's-Hertogenbosch

Nieuw bedrijf
November 2025
Genhoes 50, 5235CH 's-Hertogenbosch

Binnenkijken bij
Woensdag 29-10-2025
Reinekeshof 19, 5235CV Den Bosch

Nieuw bedrijf
Oktober 2025
Hofstedenlaan 27, 5235CL 's-Hertogenbosch

112 melding
Zondag 26-10-2025 om 12:43
Maaspoortweg, 5235KC 's-Hertogenbosch

Direct een e-mail ontvangen bij nieuwe meldingen in deze regio?

Meld je dan GRATIS aan voor de Oozo Alert service voor Abdijenbuurt

Instellen

Meer nieuws in Abdijenbuurt

Weten hoe eenvoudig het is om af te vallen? Zonder pillen en smeersels en zonder je in het zweet te werken!
Kijk op eenvoudig-afvallen.nl

© 2012 - 2025 OOZO.nl - info@oozo.nl - Gegevens verwijderen? | Disclaimer | Privacy statement