Woning Thorbeckeplantsoen 46 Den Bosch

Thorbeckeplantsoen 46, 5237DJ Den Bosch

Ontvang updates voor De Staatsliedenbuurt

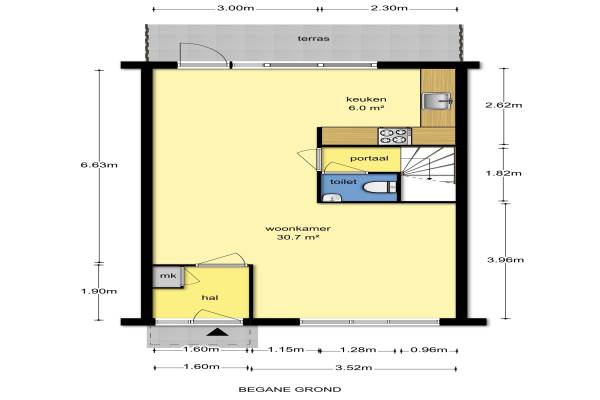
Het adres van deze woning uit 1989 is Thorbeckeplantsoen 46 te Den Bosch. Het pand heeft een oppervlakte van 88m² en een perceeloppervlakte van 140m² en heeft 4 kamers kamers waarvan 3 slaapkamers. De geschatte waarde van deze woning is € 179.500.

Bekijk alle woningen in De Staatsliedenbuurt

Gegevens van Eengezinswoning, tussenwoning

Bouwjaar
1989
Geschatte waarde
€ 179.500
Oppervlakte
88 m2
Inhoud
279 m3
Aantal kamers
4 kamers
Slaapkamers
3
Badkamers
1 badkamer en 1 apart toilet
Soort bouw
Bestaande bouw
Eigendomssituatie
Volle eigendom
Ligging
In woonwijk
Tuin
Achtertuin en voortuin
Achtertuin
60 m² (12m diep en 5m breed)

Voorzieningen in de buurt

Boodschappen0,8 km
Grote supermarkt0,8 km
Cafetaria0,8 km
Restaurant0,9 km
Huisarts0,4 km
Ziekenhuis1,8 km
Kinderdagverblijf0,6 km
BSO0,5 km
Alle voorzieningen in De Staatsliedenbuurt

Binnenkijken bij Thorbeckeplantsoen 46 te Den Bosch

Meer meldingen in deze omgeving

Binnenkijken bij
Zondag 7-12-2025
Nolenshof 5, 5237CJ Den Bosch

Nieuw bedrijf
December 2025
Gerbrandyhof 13, 5237CD 's-Hertogenbosch

Nieuw bedrijf
December 2025
Goeman Borgesiusstraat 1, 5237CT 's-Hertogenbosch

Binnenkijken bij
Zaterdag 29-11-2025
Marie Koenenlaan 28, 5237BL Den Bosch

Binnenkijken bij
Vrijdag 21-11-2025
de Savornin Lohmanstraat 8, 5237CA Den Bosch

Nieuw bedrijf
November 2025
Huigepolder 7, 5235VJ 's-Hertogenbosch

Nieuw bedrijf
November 2025
Huigepolder 16, 5235VJ 's-Hertogenbosch

Binnenkijken bij
Dinsdag 11-11-2025
To Janssenstraat 4, 5237CW Den Bosch

Direct een e-mail ontvangen bij nieuwe meldingen in deze regio?

Meld je dan GRATIS aan voor de Oozo Alert service voor De Staatsliedenbuurt

Instellen

Meer nieuws in De Staatsliedenbuurt

Weten hoe eenvoudig het is om af te vallen? Zonder pillen en smeersels en zonder je in het zweet te werken!
Kijk op eenvoudig-afvallen.nl

© 2012 - 2025 OOZO.nl - info@oozo.nl - Gegevens verwijderen? | Disclaimer | Privacy statement