Woning Meester de Groetlaan 16 Den Bosch

Meester de Groetlaan 16, 5237JJ Den Bosch

Ontvang updates voor Het Zilverpark

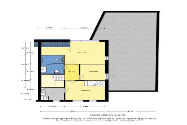
Het adres van deze woning uit 1992 is Meester de Groetlaan 16 te Den Bosch. Het pand heeft een oppervlakte van 150m² en een perceeloppervlakte van 336m² en heeft 4 kamers kamers waarvan 3 slaapkamers. De geschatte waarde van deze woning is € 409.000.

Bekijk alle woningen in Het Zilverpark

Gegevens van Eengezinswoning, 2-onder-1-kapwoning

Bouwjaar
1992
Geschatte waarde
€ 409.000
Oppervlakte
150 m2
Inhoud
525 m3
Aantal kamers
4 kamers
Slaapkamers
3
Badkamers
1 badkamer en 1 apart toilet
Soort bouw
Bestaande bouw
Eigendomssituatie
Volle eigendom
Ligging
In woonwijk
Tuin
Achtertuin en voortuin
Achtertuin
190 m² (19m diep en 10m breed)

Voorzieningen in de buurt

Boodschappen0,5 km
Grote supermarkt0,5 km
Cafetaria0,5 km
Restaurant0,5 km
Huisarts0,4 km
Ziekenhuis2,2 km
Kinderdagverblijf0,3 km
BSO0,4 km
Alle voorzieningen in Het Zilverpark

Binnenkijken bij Meester de Groetlaan 16 te Den Bosch

Meer meldingen in deze omgeving

112 melding
Maandag 8-12-2025 om 16:06
Meester Spoermekerlaan, 's-Hertogenbosch

Nieuw bedrijf
December 2025
Zilverlinde 25, 5237HD 's-Hertogenbosch

Nieuw bedrijf
December 2025
Meester Happensoenlaan 8, 5237JN 's-Hertogenbosch

112 melding
Zaterdag 29-11-2025 om 20:38
Meester van Merwicklaan, 5237KL 's-Hertogenbosch

Binnenkijken bij
Zaterdag 29-11-2025
Meester Spoermekerlaan 12, 5237JZ Den Bosch

Nieuw bedrijf
November 2025
Meester Bierkuslaan 10, 5237JC 's-Hertogenbosch

112 melding
Maandag 17-11-2025 om 12:25
Zilverkruid, 5237HA 's-Hertogenbosch

Binnenkijken bij
Zaterdag 15-11-2025
Meester Weechslaan 10, 5237KP Den Bosch

Direct een e-mail ontvangen bij nieuwe meldingen in deze regio?

Meld je dan GRATIS aan voor de Oozo Alert service voor Het Zilverpark

Instellen

Meer nieuws in Het Zilverpark

Weten hoe eenvoudig het is om af te vallen? Zonder pillen en smeersels en zonder je in het zweet te werken!
Kijk op eenvoudig-afvallen.nl

© 2012 - 2025 OOZO.nl - info@oozo.nl - Gegevens verwijderen? | Disclaimer | Privacy statement