Woning Moliusstraat 8 Den Bosch

Moliusstraat 8, 5212TP Den Bosch

Ontvang updates voor De Muntel

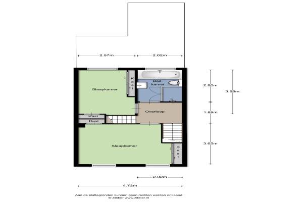
Het adres van deze woning uit 1932 is Moliusstraat 8 te Den Bosch. Het pand heeft een oppervlakte van 130m² en een perceeloppervlakte van 103m² en heeft 5 kamers kamers waarvan 3 slaapkamers. De geschatte waarde van deze woning is € 419.000.

Bekijk alle woningen in De Muntel

Gegevens van Eengezinswoning, tussenwoning

Bouwjaar
1932
Geschatte waarde
€ 419.000
Oppervlakte
130 m2
Inhoud
440 m3
Aantal kamers
5 kamers
Slaapkamers
3
Badkamers
1 badkamer en 1 apart toilet
Soort bouw
Bestaande bouw
Eigendomssituatie
Volle eigendom
Ligging
Aan rustige weg en in woonwijk
Tuin
Achtertuin
Achtertuin
32 m² (7m diep en 4,5m breed)

Voorzieningen in de buurt

Boodschappen0,2 km
Grote supermarkt0,3 km
Cafetaria0,3 km
Restaurant0,2 km
Huisarts0,3 km
Ziekenhuis3,3 km
Kinderdagverblijf0,4 km
BSO0,5 km
Alle voorzieningen in De Muntel

Binnenkijken bij Moliusstraat 8 te Den Bosch

Meer meldingen in deze omgeving

112 melding
Woensdag 25-3-2026 om 07:00
Hennequinstraat, 's-Hertogenbosch

Nieuw bedrijf
Maart 2026
Arnoud van Gelderstraat 25, 5212TK 's-Hertogenbosch

Nieuw bedrijf
Maart 2026
Kapelaan Koopmansplein 119, 5212NW 's-Hertogenbosch

Nieuw bedrijf
Maart 2026
van Noremborghstraat 62, 5212ND 's-Hertogenbosch

Binnenkijken bij
Maandag 23-3-2026
Arnoud van Gelderstraat 22, 5212TL Den Bosch

112 melding
Woensdag 18-3-2026 om 23:36
Gheert van Calcarplein, 's-Hertogenbosch

112 melding
Woensdag 18-3-2026 om 23:36
Gheert van Calcarplein, 's-Hertogenbosch

Binnenkijken bij
Zondag 15-3-2026
Gheert van Calcarplein 69, 5212RR Den Bosch

Direct een e-mail ontvangen bij nieuwe meldingen in deze regio?

Meld je dan GRATIS aan voor de Oozo Alert service voor De Muntel

Instellen

Meer nieuws in De Muntel

Weten hoe eenvoudig het is om af te vallen? Zonder pillen en smeersels en zonder je in het zweet te werken!
Kijk op eenvoudig-afvallen.nl

© 2012 - 2026 OOZO.nl - info@oozo.nl - Gegevens verwijderen? | Disclaimer | Privacy statement