Woning Kattenbosch 26 Rosmalen

Kattenbosch 26, 5243SE Rosmalen

Ontvang updates voor Hondsberg

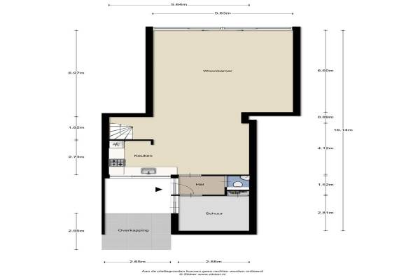
Het adres van deze woning uit 1975 is Kattenbosch 26 te Rosmalen. Het pand heeft een oppervlakte van 192m² en een perceeloppervlakte van 174m² en heeft 5 kamers kamers waarvan 4 slaapkamers. De geschatte waarde van deze woning is € 350.000.

Bekijk alle woningen in Hondsberg

Gegevens van Eengezinswoning, tussenwoning

Bouwjaar
1975
Geschatte waarde
€ 350.000
Oppervlakte
192 m2
Inhoud
616 m3
Aantal kamers
5 kamers
Slaapkamers
4
Badkamers
1 badkamer en 1 apart toilet
Soort bouw
Bestaande bouw
Eigendomssituatie
Volle eigendom
Ligging
Aan rustige weg, beschutte ligging, in bosrijke omgeving en in woonwijk
Tuin
Achtertuin
Achtertuin
69 m² (11,5m diep en 6m breed)

Voorzieningen in de buurt

Boodschappen0,6 km
Grote supermarkt0,7 km
Cafetaria0,4 km
Restaurant0,5 km
Huisarts0,8 km
Ziekenhuis1,0 km
Kinderdagverblijf0,4 km
BSO0,4 km
Alle voorzieningen in Hondsberg

Binnenkijken bij Kattenbosch 26 te Rosmalen

Meer meldingen in deze omgeving

Nieuw bedrijf
December 2025
Pastoor Hordijkstraat 52, 5243VX Rosmalen

Nieuw bedrijf
December 2025
Geenbergenstraat 11, 5243SM Rosmalen

Nieuw bedrijf
November 2025
Luyckershofke 1, 5243WB Rosmalen

112 melding
Vrijdag 28-11-2025 om 00:53
Pastoor Hordijkstraat, Rosmalen

112 melding
Vrijdag 28-11-2025 om 00:50
Pastoor Hordijkstraat, Rosmalen

Binnenkijken bij
Vrijdag 21-11-2025
Cerberusstraat 60, 5243XR Rosmalen

Binnenkijken bij
Zondag 16-11-2025
Hoff van Hollantlaan 4C13, 5243SR Rosmalen

Binnenkijken bij
Dinsdag 11-11-2025
Deken Fritsenstraat 92, 5243VR Rosmalen

Direct een e-mail ontvangen bij nieuwe meldingen in deze regio?

Meld je dan GRATIS aan voor de Oozo Alert service voor Hondsberg

Instellen

Meer nieuws in Hondsberg

Weten hoe eenvoudig het is om af te vallen? Zonder pillen en smeersels en zonder je in het zweet te werken!
Kijk op eenvoudig-afvallen.nl

© 2012 - 2025 OOZO.nl - info@oozo.nl - Gegevens verwijderen? | Disclaimer | Privacy statement