Woning Heliusstraat 15 Rosmalen

Heliusstraat 15, 5243XB Rosmalen

Ontvang updates voor Hondsberg

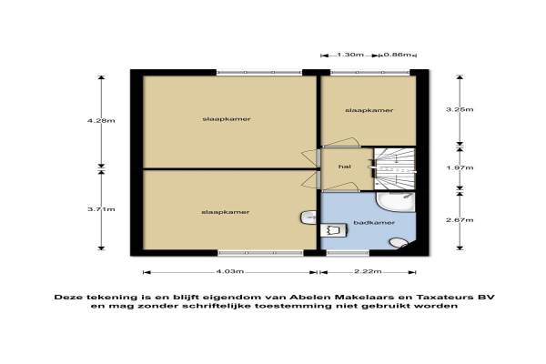
Het adres van deze woning uit 1972 is Heliusstraat 15 te Rosmalen. Het pand heeft een oppervlakte van 126m² en een perceeloppervlakte van 178m² en heeft 5 kamers kamers waarvan 4 slaapkamers. De geschatte waarde van deze woning is € 239.000.

Bekijk alle woningen in Hondsberg

Gegevens van Eengezinswoning, tussenwoning

Bouwjaar
1972
Geschatte waarde
€ 239.000
Oppervlakte
126 m2
Inhoud
430 m3
Aantal kamers
5 kamers
Slaapkamers
4
Badkamers
1 badkamer en 1 apart toilet
Soort bouw
Bestaande bouw
Eigendomssituatie
Volle eigendom
Ligging
Aan rustige weg en in woonwijk
Tuin
Achtertuin en voortuin
Achtertuin
77 m² (11m diep en 7m breed)

Voorzieningen in de buurt

Boodschappen0,6 km
Grote supermarkt0,7 km
Cafetaria0,4 km
Restaurant0,5 km
Huisarts0,8 km
Ziekenhuis1,0 km
Kinderdagverblijf0,4 km
BSO0,4 km
Alle voorzieningen in Hondsberg

Binnenkijken bij Heliusstraat 15 te Rosmalen

Meer meldingen in deze omgeving

Binnenkijken bij
Zondag 16-11-2025
Hoff van Hollantlaan 4C13, 5243SR Rosmalen

Nieuw bedrijf
November 2025
Luyckershofke 1, 5243WB Rosmalen

Binnenkijken bij
Dinsdag 11-11-2025
Deken Fritsenstraat 92, 5243VR Rosmalen

Nieuw bedrijf
November 2025
Cerberusstraat 46, 5243XR Rosmalen

112 melding
Donderdag 30-10-2025 om 15:06
Hoff van Hollantlaan, 5243SR Rosmalen

112 melding
Donderdag 30-10-2025 om 15:00
Hoff van Hollantlaan, 5243SR Rosmalen

Binnenkijken bij
Woensdag 29-10-2025
Deken Fritsenstraat 70, 5243VR Rosmalen

Binnenkijken bij
Woensdag 29-10-2025
Luyckershofke 14A, 5243WB Rosmalen

Direct een e-mail ontvangen bij nieuwe meldingen in deze regio?

Meld je dan GRATIS aan voor de Oozo Alert service voor Hondsberg

Instellen

Meer nieuws in Hondsberg

Weten hoe eenvoudig het is om af te vallen? Zonder pillen en smeersels en zonder je in het zweet te werken!
Kijk op eenvoudig-afvallen.nl

© 2012 - 2025 OOZO.nl - info@oozo.nl - Gegevens verwijderen? | Disclaimer | Privacy statement