Woning Keizerstraat 6 Rosmalen

Keizerstraat 6, 5241TL Rosmalen

Ontvang updates voor Rosmalen-Centrum

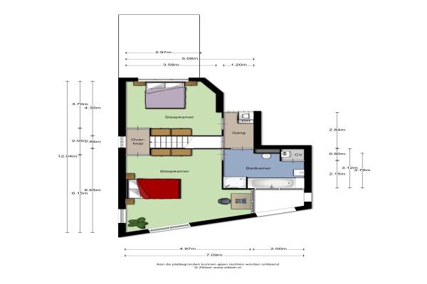
Het adres van deze woning uit 1996 is Keizerstraat 6 te Rosmalen. Het pand heeft een oppervlakte van 120m² en heeft 3 kamers kamers waarvan 2 slaapkamers. De geschatte waarde van deze woning is € 375.000.

Bekijk alle woningen in Rosmalen-Centrum

Gegevens van Galerijflat (appartement)

Bouwjaar
1996
Geschatte waarde
€ 375.000
Oppervlakte
120 m2
Inhoud
400 m3
Aantal kamers
3 kamers
Slaapkamers
2
Badkamers
1 badkamer en 1 apart toilet
Soort bouw
Bestaande bouw
Eigendomssituatie
Volle eigendom
Ligging
In centrum

Voorzieningen in de buurt

Boodschappen0,2 km
Grote supermarkt0,4 km
Cafetaria0,2 km
Restaurant0,2 km
Huisarts0,5 km
Ziekenhuis1,0 km
Kinderdagverblijf0,3 km
BSO0,4 km
Alle voorzieningen in Rosmalen-Centrum

Binnenkijken bij Keizerstraat 6 te Rosmalen

Meer meldingen in deze omgeving

Nieuw bedrijf
November 2025
Venstraat 31, 5241CD Rosmalen

Binnenkijken bij
Woensdag 26-11-2025
Lambertusterp 2, 5241VC Rosmalen

Binnenkijken bij
Vrijdag 21-11-2025
Schoolstraat 14C, 5241VB Rosmalen

Nieuw bedrijf
November 2025
Dorpsstraat 29, 5241EA Rosmalen

Nieuw bedrijf
November 2025
Oude Dijk 21, 5241CV Rosmalen

Nieuw bedrijf
November 2025
Dorpsstraat 29, 5241EA Rosmalen

Nieuw bedrijf
November 2025
Dorpsstraat 29, 5241EA Rosmalen

Nieuw bedrijf
November 2025
Dorpsstraat 29, 5241EA Rosmalen

Direct een e-mail ontvangen bij nieuwe meldingen in deze regio?

Meld je dan GRATIS aan voor de Oozo Alert service voor Rosmalen-Centrum

Instellen

Meer nieuws in Rosmalen-Centrum

Weten hoe eenvoudig het is om af te vallen? Zonder pillen en smeersels en zonder je in het zweet te werken!
Kijk op eenvoudig-afvallen.nl

© 2012 - 2025 OOZO.nl - info@oozo.nl - Gegevens verwijderen? | Disclaimer | Privacy statement