Woning Begoniastraat 3 Rosmalen

Begoniastraat 3, 5241AT Rosmalen

Ontvang updates voor 't Ven

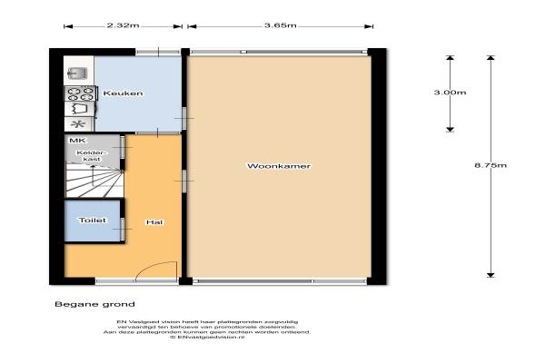
Het adres van deze woning uit 1970 is Begoniastraat 3 te Rosmalen. Het pand heeft een oppervlakte van 120m² en een perceeloppervlakte van 130m² en heeft 6 kamers kamers waarvan 5 slaapkamers. De geschatte waarde van deze woning is € 237.500.

Bekijk alle woningen in 't Ven

Gegevens van Eengezinswoning, tussenwoning

Bouwjaar
1970
Geschatte waarde
€ 237.500
Oppervlakte
120 m2
Inhoud
390 m3
Aantal kamers
6 kamers
Slaapkamers
5
Soort bouw
Bestaande bouw

Voorzieningen in de buurt

Boodschappen0,6 km
Grote supermarkt0,8 km
Cafetaria0,4 km
Restaurant0,6 km
Huisarts1,0 km
Ziekenhuis1,7 km
Kinderdagverblijf0,4 km
BSO0,4 km
Alle voorzieningen in 't Ven

Binnenkijken bij Begoniastraat 3 te Rosmalen

Meer meldingen in deze omgeving

Binnenkijken bij
Donderdag 19-2-2026
Azaleastraat 3, 5241XW Rosmalen

112 melding
Zaterdag 14-2-2026 om 04:59
Rozenstraat, Rosmalen

112 melding
Zaterdag 7-2-2026 om 20:15
Orchideeënstraat, 5241 Rosmalen

112 melding
Zaterdag 7-2-2026 om 01:36
Petuniastraat, Rosmalen

Binnenkijken bij
Donderdag 5-2-2026
Goudsbloemstraat 14, 5241AE Rosmalen

Binnenkijken bij
Zondag 25-1-2026
Pioenroosstraat 1, 5241AB Rosmalen

112 melding
Vrijdag 23-1-2026 om 15:22
Dahliastraat, 5241BP Rosmalen

Binnenkijken bij
Woensdag 21-1-2026
Petuniastraat 30, 5241AM Rosmalen

Direct een e-mail ontvangen bij nieuwe meldingen in deze regio?

Meld je dan GRATIS aan voor de Oozo Alert service voor 't Ven

Instellen

Meer nieuws in 't Ven

Weten hoe eenvoudig het is om af te vallen? Zonder pillen en smeersels en zonder je in het zweet te werken!
Kijk op eenvoudig-afvallen.nl

© 2012 - 2026 OOZO.nl - info@oozo.nl - Gegevens verwijderen? | Disclaimer | Privacy statement