Woning Jan van Brakelstraat 7 Den Bosch

Jan van Brakelstraat 7, 5224HD Den Bosch

Ontvang updates voor De Kruiskamp

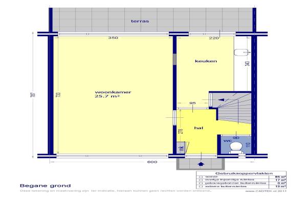
Het adres van deze woning uit 1965 is Jan van Brakelstraat 7 te Den Bosch. Het pand heeft een oppervlakte van 85m² en een perceeloppervlakte van 145m² en heeft 4 kamers kamers waarvan 3 slaapkamers. De geschatte waarde van deze woning is € 175.000.

Bekijk alle woningen in De Kruiskamp

Gegevens van Eengezinswoning, tussenwoning

Bouwjaar
1965
Geschatte waarde
€ 175.000
Oppervlakte
85 m2
Inhoud
315 m3
Aantal kamers
4 kamers
Slaapkamers
3
Badkamers
1 badkamer en 1 apart toilet
Soort bouw
Bestaande bouw
Eigendomssituatie
Volle eigendom
Ligging
In woonwijk
Tuin
Achtertuin en voortuin
Achtertuin
39 m² (7m diep en 5,5m breed)

Voorzieningen in de buurt

Boodschappen0,6 km
Grote supermarkt0,6 km
Cafetaria0,4 km
Restaurant1,0 km
Huisarts1,5 km
Ziekenhuis2,7 km
Kinderdagverblijf0,5 km
BSO0,6 km
Alle voorzieningen in De Kruiskamp

Binnenkijken bij Jan van Brakelstraat 7 te Den Bosch

Meer meldingen in deze omgeving

Nieuw bedrijf
Oktober 2025
Bredastraat 16, 5224VE 's-Hertogenbosch

Nieuw bedrijf
Oktober 2025
Anthony Fokkerstraat 19, 5224BA 's-Hertogenbosch

Nieuw bedrijf
Oktober 2025
Bredastraat 35, 5224VD 's-Hertogenbosch

Nieuw bedrijf
Oktober 2025
Prof. Rutgersstraat 6, 5224JN 's-Hertogenbosch

112 melding
Dinsdag 21-10-2025 om 12:18
Jan Olieslagersstraat, 's-Hertogenbosch

Binnenkijken bij
Vrijdag 17-10-2025
Antwerpenstraat 2, 5224TE Den Bosch

Binnenkijken bij
Vrijdag 17-10-2025
Kruiskampsingel 187, 5224KG Den Bosch

Binnenkijken bij
Vrijdag 17-10-2025
Kruiskampsingel 327, 5224KK Den Bosch

Direct een e-mail ontvangen bij nieuwe meldingen in deze regio?

Meld je dan GRATIS aan voor de Oozo Alert service voor De Kruiskamp

Instellen

Meer nieuws in De Kruiskamp

Weten hoe eenvoudig het is om af te vallen? Zonder pillen en smeersels en zonder je in het zweet te werken!
Kijk op eenvoudig-afvallen.nl

© 2012 - 2025 OOZO.nl - info@oozo.nl - Gegevens verwijderen? | Disclaimer | Privacy statement