Woning Willem Barentszstraat 50 Den Bosch

Willem Barentszstraat 50, 5223HM Den Bosch

Ontvang updates voor De Schutskamp

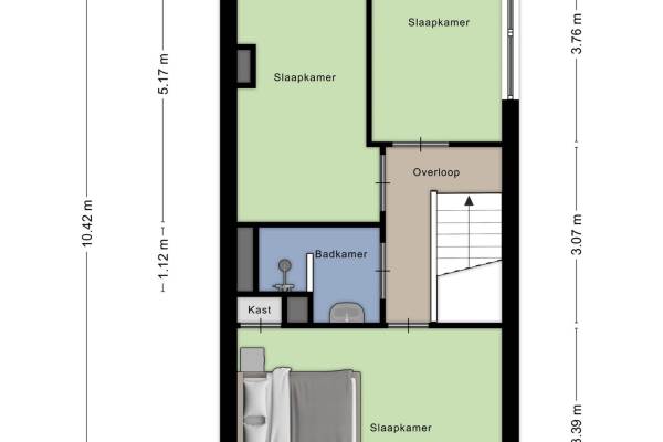
Het adres van deze woning uit 1962 is Willem Barentszstraat 50 te Den Bosch. Het pand heeft een oppervlakte van 87m² en heeft 4 kamers kamers waarvan 3 slaapkamers. De geschatte waarde van deze woning is € 275.000.

Bekijk alle woningen in De Schutskamp

Gegevens van Maisonnette (appartement)

Bouwjaar
1962
Geschatte waarde
€ 275.000
Oppervlakte
87 m2
Inhoud
300 m3
Aantal kamers
4 kamers
Slaapkamers
3
Badkamers
1 badkamer en 1 apart toilet
Soort bouw
Bestaande bouw
Eigendomssituatie
Volle eigendom
Ligging
In woonwijk

Voorzieningen in de buurt

Boodschappen0,5 km
Grote supermarkt0,3 km
Cafetaria0,4 km
Restaurant0,4 km
Huisarts0,6 km
Ziekenhuis1,6 km
Kinderdagverblijf0,5 km
BSO0,6 km
Alle voorzieningen in De Schutskamp

Binnenkijken bij Willem Barentszstraat 50 te Den Bosch

Meer meldingen in deze omgeving

Binnenkijken bij
Donderdag 30-10-2025
Jacob Roggeveenstraat 13, 5223VM Den Bosch

Nieuw bedrijf
Oktober 2025
Helftheuvelpassage 12H, 5224AP 's-Hertogenbosch

Binnenkijken bij
Woensdag 29-10-2025
Pedro Cabralstraat 37, 5223RE Den Bosch

Binnenkijken bij
Woensdag 29-10-2025
Jacob Cnodestraat 37, 5223HS Den Bosch

Binnenkijken bij
Woensdag 29-10-2025
Jacob van Heemskerckstraat 31, 5223TD Den Bosch

Nieuw bedrijf
Oktober 2025
Robert Scottstraat 9, 5223TS 's-Hertogenbosch

Nieuw bedrijf
Oktober 2025
Hudsonlaan 13, 5223SG 's-Hertogenbosch

Nieuw bedrijf
Oktober 2025
Kooikersweg 175, 5223KE 's-Hertogenbosch

Direct een e-mail ontvangen bij nieuwe meldingen in deze regio?

Meld je dan GRATIS aan voor de Oozo Alert service voor De Schutskamp

Instellen

Meer nieuws in De Schutskamp

Weten hoe eenvoudig het is om af te vallen? Zonder pillen en smeersels en zonder je in het zweet te werken!
Kijk op eenvoudig-afvallen.nl

© 2012 - 2025 OOZO.nl - info@oozo.nl - Gegevens verwijderen? | Disclaimer | Privacy statement