Woning Jacob van Maerlantstraat 43 Den Bosch

Jacob van Maerlantstraat 43, 5216JC Den Bosch

Ontvang updates voor Bazeldonk

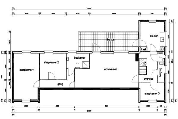
Het adres van deze woning uit 1957 is Jacob van Maerlantstraat 43 te Den Bosch. Het pand heeft een oppervlakte van 120m² en heeft 5 kamers kamers waarvan 3 slaapkamers. De geschatte waarde van deze woning is € 255.000.

Bekijk alle woningen in Bazeldonk

Gegevens van Bovenwoning (appartement)

Bouwjaar
1957
Geschatte waarde
€ 255.000
Oppervlakte
120 m2
Inhoud
360 m3
Aantal kamers
5 kamers
Slaapkamers
3
Badkamers
1 apart toilet
Soort bouw
Bestaande bouw
Eigendomssituatie
Volle eigendom
Ligging
In woonwijk
Tuin
Zonneterras

Voorzieningen in de buurt

Boodschappen0,3 km
Grote supermarkt0,9 km
Cafetaria0,3 km
Restaurant0,3 km
Huisarts0,6 km
Ziekenhuis3,9 km
Kinderdagverblijf0,8 km
BSO0,9 km
Alle voorzieningen in Bazeldonk

Binnenkijken bij Jacob van Maerlantstraat 43 te Den Bosch

Meer meldingen in deze omgeving

Nieuw bedrijf
December 2025
Van Heelustraat 9, 5216JN 's-Hertogenbosch

112 melding
Donderdag 25-12-2025 om 16:31
Erasmusstraat, 5216HM 's-Hertogenbosch

112 melding
Dinsdag 16-12-2025 om 14:22
Erasmusstraat, 5216HM 's-Hertogenbosch

Nieuw bedrijf
December 2025
Erasmusstraat 5, 5216HM 's-Hertogenbosch

Nieuw bedrijf
December 2025
Erasmusstraat 5, 5216HM 's-Hertogenbosch

Nieuw bedrijf
December 2025
Adriaan Poirterssingel 55, 5216XC 's-Hertogenbosch

Binnenkijken bij
Zaterdag 6-12-2025
Van Ruusbroecstraat 97, 5216JA Den Bosch

Nieuw bedrijf
November 2025
Limietlaan 39, 5216JK 's-Hertogenbosch

Direct een e-mail ontvangen bij nieuwe meldingen in deze regio?

Meld je dan GRATIS aan voor de Oozo Alert service voor Bazeldonk

Instellen

Meer nieuws in Bazeldonk

Weten hoe eenvoudig het is om af te vallen? Zonder pillen en smeersels en zonder je in het zweet te werken!
Kijk op eenvoudig-afvallen.nl

© 2012 - 2026 OOZO.nl - info@oozo.nl - Gegevens verwijderen? | Disclaimer | Privacy statement