Woning Korte Kerkstraat 11 Schiedam

Korte Kerkstraat 11, 3111JE Schiedam

Ontvang updates voor Buurt 00

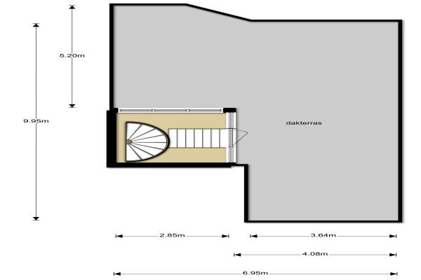
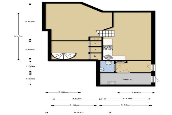
Het adres van deze woning uit 1906 is Korte Kerkstraat 11 te Schiedam. Het pand heeft een oppervlakte van 120m² en een perceeloppervlakte van 64m² en heeft 4 kamers kamers waarvan 3 slaapkamers. De geschatte waarde van deze woning is € 275.000.

Bekijk alle woningen in Buurt 00

Gegevens van Eengezinswoning, tussenwoning

Bouwjaar
1906
Geschatte waarde
€ 275.000
Oppervlakte
120 m2
Inhoud
380 m3
Aantal kamers
4 kamers
Slaapkamers
3
Badkamers
1 badkamer en 1 apart toilet
Soort bouw
Bestaande bouw
Eigendomssituatie
Volle eigendom
Ligging
Aan rustige weg en in centrum
Tuin
Zonneterras

Voorzieningen in de buurt

Boodschappen0,1 km
Grote supermarkt0,2 km
Cafetaria0,1 km
Restaurant0,1 km
Huisarts0,7 km
Ziekenhuis2,1 km
Kinderdagverblijf0,5 km
BSO0,5 km
Alle voorzieningen in Buurt 00

Binnenkijken bij Korte Kerkstraat 11 te Schiedam

Meer meldingen in deze omgeving

112 melding
Zaterdag 4-4-2026 om 00:37
Lange Haven, 3111CH Schiedam

112 melding
Zaterdag 4-4-2026 om 00:36
Lange Haven, 3111CH Schiedam

112 melding
Zaterdag 4-4-2026 om 00:35
Lange Haven, 3111CH Schiedam

112 melding
Vrijdag 3-4-2026 om 14:40
Broersveld, 3111LE Schiedam

112 melding
Vrijdag 3-4-2026 om 12:43
Land van Belofte, 3111NW Schiedam

112 melding
Vrijdag 3-4-2026 om 12:43
Land van Belofte, 3111NW Schiedam

112 melding
Vrijdag 3-4-2026 om 12:35
Land van Belofte, 3111NW Schiedam

Binnenkijken bij
Vrijdag 3-4-2026
Herenpad 6C, 3111LP Schiedam

Direct een e-mail ontvangen bij nieuwe meldingen in deze regio?

Meld je dan GRATIS aan voor de Oozo Alert service voor Buurt 00

Instellen

Meer nieuws in Buurt 00

Weten hoe eenvoudig het is om af te vallen? Zonder pillen en smeersels en zonder je in het zweet te werken!
Kijk op eenvoudig-afvallen.nl

© 2012 - 2026 OOZO.nl - info@oozo.nl - Gegevens verwijderen? | Disclaimer | Privacy statement