Woning Toon Verheystraat 41 Schiedam

Toon Verheystraat 41, 3122TP Schiedam

Ontvang updates voor Groenoord-Midden

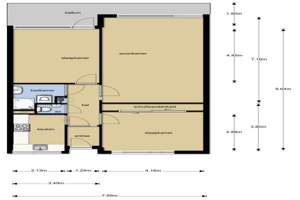
Het adres van deze woning uit 1966 is Toon Verheystraat 41 te Schiedam. Het pand heeft een oppervlakte van 83m² en heeft 3 kamers kamers waarvan 2 slaapkamers. De geschatte waarde van deze woning is € 135.000.

Bekijk alle woningen in Groenoord-Midden

Gegevens van Galerijflat

Bouwjaar
1966
Geschatte waarde
€ 135.000
Oppervlakte
83 m2
Inhoud
195 m3
Aantal kamers
3 kamers
Slaapkamers
2
Badkamers
1 badkamer en 1 apart toilet
Soort bouw
Bestaande bouw
Eigendomssituatie
Gemeentelijke erfpacht (einddatum erfpacht: 06-01-2039)
Ligging
Aan rustige weg en in woonwijk

Voorzieningen in de buurt

Boodschappen0,3 km
Grote supermarkt0,3 km
Cafetaria0,5 km
Restaurant0,8 km
Huisarts1,4 km
Ziekenhuis1,5 km
Kinderdagverblijf0,3 km
BSO0,4 km
Alle voorzieningen in Groenoord-Midden

Binnenkijken bij Toon Verheystraat 41 te Schiedam

Meer meldingen in deze omgeving

112 melding
Zondag 30-11-2025 om 16:53
Willem Andriessenlaan, 3122JT Schiedam

112 melding
Zondag 30-11-2025 om 12:55
Louis Zimmermannplein, 3122GT Schiedam

112 melding
Zondag 30-11-2025 om 12:41
Louis Zimmermannplein, 3122GT Schiedam

112 melding
Zondag 30-11-2025 om 11:14
Louis Zimmermannplein, 3122GT Schiedam

112 melding
Zondag 30-11-2025 om 10:18
Willem Andriessenlaan, 3122JT Schiedam

112 melding
Zondag 30-11-2025 om 10:11
Willem Andriessenlaan, 3122JS Schiedam

112 melding
Zaterdag 29-11-2025 om 22:33
Willem Andriessenlaan, 3122JT Schiedam

112 melding
Zaterdag 29-11-2025 om 22:31
Willem Andriessenlaan, 3122JT Schiedam

Direct een e-mail ontvangen bij nieuwe meldingen in deze regio?

Meld je dan GRATIS aan voor de Oozo Alert service voor Groenoord-Midden

Instellen

Meer nieuws in Groenoord-Midden

Weten hoe eenvoudig het is om af te vallen? Zonder pillen en smeersels en zonder je in het zweet te werken!
Kijk op eenvoudig-afvallen.nl

© 2012 - 2025 OOZO.nl - info@oozo.nl - Gegevens verwijderen? | Disclaimer | Privacy statement