Woning Hargsingel 29 Schiedam

Hargsingel 29, 3121VH Schiedam

Ontvang updates voor Tuindorp

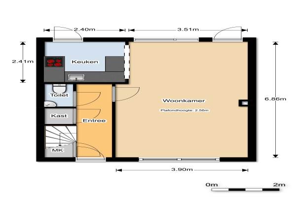
Het adres van deze woning uit 1950 is Hargsingel 29 te Schiedam. Het pand heeft een oppervlakte van 85m² en een perceeloppervlakte van 130m² en heeft 4 kamers kamers waarvan 3 slaapkamers. De geschatte waarde van deze woning is € 225.000.

Bekijk alle woningen in Tuindorp

Gegevens van Eengezinswoning, tussenwoning

Bouwjaar
1950
Geschatte waarde
€ 225.000
Oppervlakte
85 m2
Inhoud
280 m3
Aantal kamers
4 kamers
Slaapkamers
3
Badkamers
1 badkamer en 1 apart toilet
Soort bouw
Bestaande bouw
Eigendomssituatie
Eigendom belast met erfpacht
Ligging
Aan rustige weg en in woonwijk
Tuin
Achtertuin en voortuin
Achtertuin
53 m² (9m diep en 5,9m breed)

Voorzieningen in de buurt

Boodschappen0,6 km
Grote supermarkt0,7 km
Cafetaria0,6 km
Restaurant0,6 km
Huisarts1,0 km
Ziekenhuis1,4 km
Kinderdagverblijf0,3 km
BSO0,6 km
Alle voorzieningen in Tuindorp

Binnenkijken bij Hargsingel 29 te Schiedam

Meer meldingen in deze omgeving

112 melding
Dinsdag 23-12-2025 om 21:08
Schiedamseweg, 3121JL Schiedam

Nieuw bedrijf
December 2025
Populierenlaan 14, 3121AN Schiedam

112 melding
Zondag 7-12-2025 om 11:42
Iepenlaan, 3121BB Schiedam

112 melding
Zaterdag 6-12-2025 om 14:26
Perenlaan, 3121AM Schiedam

112 melding
Donderdag 27-11-2025 om 15:43
Ribeslaan, Schiedam

112 melding
Donderdag 27-11-2025 om 15:16
Ribeslaan, 3121AS Schiedam

112 melding
Maandag 24-11-2025 om 19:34
Schiedamseweg, 3121JG Schiedam

112 melding
Maandag 24-11-2025 om 19:34
Schiedamseweg, 3121JG Schiedam

Direct een e-mail ontvangen bij nieuwe meldingen in deze regio?

Meld je dan GRATIS aan voor de Oozo Alert service voor Tuindorp

Instellen

Meer nieuws in Tuindorp

Weten hoe eenvoudig het is om af te vallen? Zonder pillen en smeersels en zonder je in het zweet te werken!
Kijk op eenvoudig-afvallen.nl

© 2012 - 2025 OOZO.nl - info@oozo.nl - Gegevens verwijderen? | Disclaimer | Privacy statement