Woning Jan van Zutphenstraat 75 Schiedam

Jan van Zutphenstraat 75, 3119BN Schiedam

Ontvang updates voor Schiehart

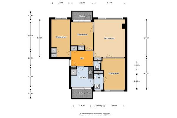
Het adres van deze woning uit 1962 is Jan van Zutphenstraat 75 te Schiedam. Het pand heeft een oppervlakte van 75m² en heeft 4 kamers kamers waarvan 3 slaapkamers. De geschatte waarde van deze woning is € 125.000.

Bekijk alle woningen in Schiehart

Gegevens van Portiekwoning

Bouwjaar
1962
Geschatte waarde
€ 125.000
Oppervlakte
75 m2
Inhoud
245 m3
Aantal kamers
4 kamers
Slaapkamers
3
Badkamers
1 badkamer en 1 apart toilet
Soort bouw
Bestaande bouw
Eigendomssituatie
Eigendom belast met erfpacht

Voorzieningen in de buurt

Boodschappen0,2 km
Grote supermarkt0,3 km
Cafetaria0,3 km
Restaurant0,3 km
Huisarts0,4 km
Ziekenhuis1,8 km
Kinderdagverblijf0,4 km
BSO0,4 km
Alle voorzieningen in Schiehart

Binnenkijken bij Jan van Zutphenstraat 75 te Schiedam

Meer meldingen in deze omgeving

112 melding
Maandag 23-2-2026 om 16:59
Burgemeester Van Haarenlaan, 3119GB Schiedam

112 melding
Maandag 16-2-2026 om 16:43
Parkweg, 3119CJ Schiedam

112 melding
Maandag 16-2-2026 om 11:58
Alphons Ariënsstraat, 3119VC Schiedam

Binnenkijken bij
Zaterdag 14-2-2026
's-Gravelandseweg 702, 3119NC Schiedam

112 melding
Woensdag 11-2-2026 om 20:28
Alphons Ariënsstraat, 3119VA Schiedam

112 melding
Maandag 9-2-2026 om 16:01
's-Gravelandseweg, 3119NE Schiedam

112 melding
Maandag 9-2-2026 om 15:59
Parkweg, 3119CC Schiedam

112 melding
Maandag 9-2-2026 om 15:14
Alphons Ariënsstraat, 3119VA Schiedam

Direct een e-mail ontvangen bij nieuwe meldingen in deze regio?

Meld je dan GRATIS aan voor de Oozo Alert service voor Schiehart

Instellen

Meer nieuws in Schiehart

Weten hoe eenvoudig het is om af te vallen? Zonder pillen en smeersels en zonder je in het zweet te werken!
Kijk op eenvoudig-afvallen.nl

© 2012 - 2026 OOZO.nl - info@oozo.nl - Gegevens verwijderen? | Disclaimer | Privacy statement