Woning Marconistraat 11a Schiedam

Marconistraat 11a, 3112EH Schiedam

Ontvang updates voor Rotterdamsedijk

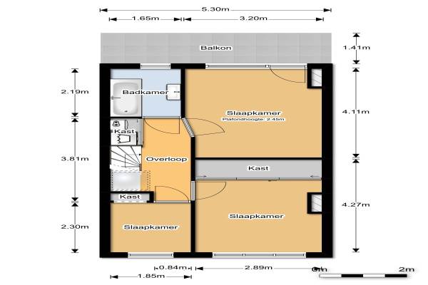
Het adres van deze woning uit 1935 is Marconistraat 11a te Schiedam. Het pand heeft een oppervlakte van 89m² en heeft 4 kamers kamers waarvan 3 slaapkamers. De geschatte waarde van deze woning is € 142.500.

Bekijk alle woningen in Rotterdamsedijk

Gegevens van Bovenwoning (dubbel bovenhuis)

Bouwjaar
1935
Geschatte waarde
€ 142.500
Oppervlakte
89 m2
Inhoud
279 m3
Aantal kamers
4 kamers
Slaapkamers
3
Badkamers
1 badkamer en 1 apart toilet
Soort bouw
Bestaande bouw
Eigendomssituatie
Volle eigendom
Ligging
In woonwijk

Voorzieningen in de buurt

Boodschappen0,2 km
Grote supermarkt0,5 km
Cafetaria0,3 km
Restaurant0,3 km
Huisarts0,4 km
Ziekenhuis2,8 km
Kinderdagverblijf0,3 km
BSO0,3 km
Alle voorzieningen in Rotterdamsedijk

Binnenkijken bij Marconistraat 11a te Schiedam

Meer meldingen in deze omgeving

112 melding
Zondag 28-12-2025 om 08:20
Rotterdamsedijk, 3112BK Schiedam

112 melding
Zondag 28-12-2025 om 04:22
Boerhaaveplein, 3112LN Schiedam

112 melding
Zondag 28-12-2025 om 00:52
Rotterdamsedijk, 3112BJ Schiedam

112 melding
Donderdag 25-12-2025 om 06:06
Rotterdamsedijk, Schiedam

112 melding
Donderdag 25-12-2025 om 04:53
Boylestraat, 3112XH Schiedam

Binnenkijken bij
Woensdag 24-12-2025
Rotterdamsedijk 90A, 3112BH Schiedam

Nieuw bedrijf
December 2025
Marconistraat 25A, 3112EJ Schiedam

Binnenkijken bij
Zaterdag 20-12-2025
Halleystraat 27A, 3112PL Schiedam

Direct een e-mail ontvangen bij nieuwe meldingen in deze regio?

Meld je dan GRATIS aan voor de Oozo Alert service voor Rotterdamsedijk

Instellen

Meer nieuws in Rotterdamsedijk

Weten hoe eenvoudig het is om af te vallen? Zonder pillen en smeersels en zonder je in het zweet te werken!
Kijk op eenvoudig-afvallen.nl

© 2012 - 2025 OOZO.nl - info@oozo.nl - Gegevens verwijderen? | Disclaimer | Privacy statement