Woning Professor Kamerlingh Onneslaan 317 Schiedam

Professor Kamerlingh Onneslaan 317, 3112VH Schiedam

Ontvang updates voor Singelkwartier

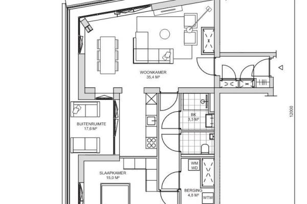
Het adres van deze woning uit 2024 is Professor Kamerlingh Onneslaan 317 te Schiedam. Het pand heeft een oppervlakte van 72m² en heeft 3 kamers kamers waarvan 2 slaapkamers. De geschatte waarde van deze woning is € 395.000.

Bekijk alle woningen in Singelkwartier

Gegevens van Portiekflat (appartement)

Bouwjaar
2024
Geschatte waarde
€ 395.000
Oppervlakte
72 m2
Inhoud
210 m3
Aantal kamers
3 kamers
Slaapkamers
2
Badkamers
1 badkamer en 1 apart toilet
Soort bouw
Nieuwbouw
Ligging
In centrum en in woonwijk

Voorzieningen in de buurt

Boodschappen0,2 km
Grote supermarkt0,3 km
Cafetaria0,2 km
Restaurant0,3 km
Huisarts0,4 km
Ziekenhuis2,7 km
Kinderdagverblijf0,2 km
BSO0,2 km
Alle voorzieningen in Singelkwartier

Binnenkijken bij Professor Kamerlingh Onneslaan 317 te Schiedam

Meer meldingen in deze omgeving

Nieuw bedrijf
December 2025
Professor Kamerlingh Onneslaan 1932, 3112VH Schiedam

Binnenkijken bij
Woensdag 10-12-2025
Van Swindenstraat 61, 3112MH Schiedam

112 melding
Dinsdag 9-12-2025 om 08:07
Villastraat, 3112TD Schiedam

112 melding
Dinsdag 9-12-2025 om 07:47
Van Leeuwenhoeckstraat, 3112SN Schiedam

112 melding
Zondag 7-12-2025 om 16:36
Villastraat, 3112TD Schiedam

112 melding
Donderdag 4-12-2025 om 14:09
Wattstraat, 3112TL Schiedam

Nieuw bedrijf
December 2025
Stephensonstraat 32A, 3112SM Schiedam

112 melding
Dinsdag 2-12-2025 om 23:45
Wattstraat, 3112TH Schiedam

Direct een e-mail ontvangen bij nieuwe meldingen in deze regio?

Meld je dan GRATIS aan voor de Oozo Alert service voor Singelkwartier

Instellen

Meer nieuws in Singelkwartier

Weten hoe eenvoudig het is om af te vallen? Zonder pillen en smeersels en zonder je in het zweet te werken!
Kijk op eenvoudig-afvallen.nl

© 2012 - 2025 OOZO.nl - info@oozo.nl - Gegevens verwijderen? | Disclaimer | Privacy statement