Woning Professor Kamerlingh Onneslaan 92 Schiedam

Professor Kamerlingh Onneslaan 92, 3112VJ Schiedam

Ontvang updates voor Stationsbuurt

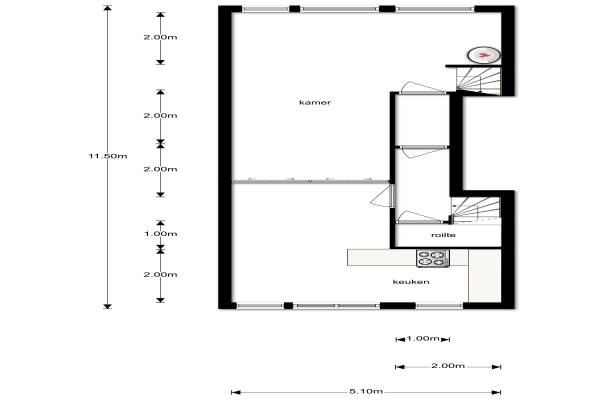
Het adres van deze woning uit 1929 is Professor Kamerlingh Onneslaan 92 te Schiedam. Het pand heeft een oppervlakte van 80m² en heeft 3 kamers kamers waarvan 1 slaapkamers. De geschatte waarde van deze woning is € 75.000.

Bekijk alle woningen in Stationsbuurt

Gegevens van Maisonnette

Bouwjaar
1929
Geschatte waarde
€ 75.000
Oppervlakte
80 m2
Inhoud
230 m3
Aantal kamers
3 kamers
Slaapkamers
1
Badkamers
1 badkamer en 1 apart toilet
Soort bouw
Bestaande bouw
Eigendomssituatie
Volle eigendom
Ligging
In centrum, in woonwijk en beschutte ligging

Voorzieningen in de buurt

Boodschappen0,1 km
Grote supermarkt0,2 km
Cafetaria0,1 km
Restaurant0,2 km
Huisarts0,6 km
Ziekenhuis2,8 km
Kinderdagverblijf0,2 km
BSO0,2 km
Alle voorzieningen in Stationsbuurt

Binnenkijken bij Professor Kamerlingh Onneslaan 92 te Schiedam

Meer meldingen in deze omgeving

112 melding
Donderdag 6-11-2025 om 08:33
Stationstraat, 3112VT Schiedam

112 melding
Woensdag 5-11-2025 om 20:40
Prof. Kamerlingh Onneslaan, 3112VM Schiedam

112 melding
Zondag 2-11-2025 om 16:20
Stationsplein, 3112HJ Schiedam

Binnenkijken bij
Woensdag 29-10-2025
Celsiusstraat 42A1, 3112VB Schiedam

Nieuw bedrijf
Oktober 2025
Professor Kamerlingh Onneslaan 284, 3112VM Schiedam

Nieuw bedrijf
Oktober 2025
Celsiusstraat 11, 3112VA Schiedam

Nieuw bedrijf
Oktober 2025
Professor Kamerlingh Onneslaan 178, 3112VM Schiedam

Binnenkijken bij
Zondag 19-10-2025
Professor Kamerlingh Onneslaan 90A1, 3112VJ Schiedam

Direct een e-mail ontvangen bij nieuwe meldingen in deze regio?

Meld je dan GRATIS aan voor de Oozo Alert service voor Stationsbuurt

Instellen

Meer nieuws in Stationsbuurt

Weten hoe eenvoudig het is om af te vallen? Zonder pillen en smeersels en zonder je in het zweet te werken!
Kijk op eenvoudig-afvallen.nl

© 2012 - 2025 OOZO.nl - info@oozo.nl - Gegevens verwijderen? | Disclaimer | Privacy statement