Woning Lange Nieuwstraat 109 Schiedam

Lange Nieuwstraat 109, 3111AE Schiedam

Ontvang updates voor De Plantage

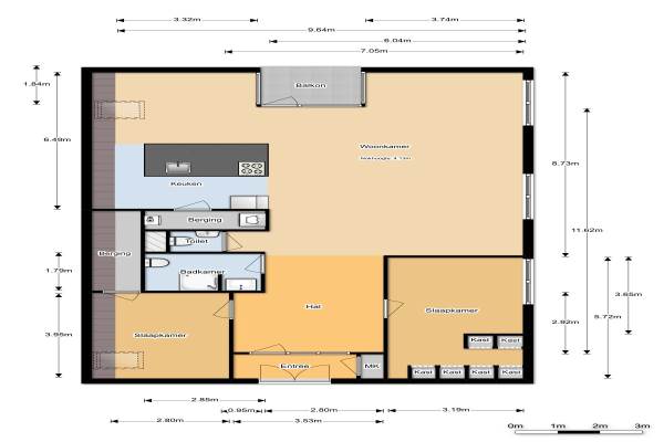
Het adres van deze woning uit 1851 is Lange Nieuwstraat 109 te Schiedam. Het pand heeft een oppervlakte van 135m² en heeft 3 kamers kamers waarvan 2 slaapkamers. De geschatte waarde van deze woning is € 419.000.

Bekijk alle woningen in De Plantage

Gegevens van Galerijflat (appartement)

Bouwjaar
1851
Geschatte waarde
€ 419.000
Oppervlakte
135 m2
Inhoud
458 m3
Aantal kamers
3 kamers
Slaapkamers
2
Soort bouw
Bestaande bouw
Eigendomssituatie
Gemeentelijke erfpacht (einddatum erfpacht: 01-02-2100)
Ligging
Aan water, aan rustige weg, in woonwijk, vrij uitzicht, beschutte ligging en aan vaarwater
Tuin
Zonneterras

Voorzieningen in de buurt

Boodschappen0,3 km
Grote supermarkt0,5 km
Cafetaria0,4 km
Restaurant0,3 km
Huisarts0,7 km
Ziekenhuis2,4 km
Kinderdagverblijf0,3 km
BSO0,4 km
Alle voorzieningen in De Plantage

Binnenkijken bij Lange Nieuwstraat 109 te Schiedam

Meer meldingen in deze omgeving

Nieuw bedrijf
April 2026
Gerrit Verboonstraat 58, 3111AA Schiedam

112 melding
Dinsdag 21-4-2026 om 16:31
Lange Nieuwstraat, 3111AJ Schiedam

112 melding
Dinsdag 21-4-2026 om 16:22
Lange Nieuwstraat, Schiedam

112 melding
Dinsdag 21-4-2026 om 16:18
Lange Nieuwstraat, 3111AJ Schiedam

112 melding
Vrijdag 17-4-2026 om 12:31
Gerrit Verboonstraat, 3111AA Schiedam

Nieuw bedrijf
April 2026
Rustenburg 12, 3111AK Schiedam

Binnenkijken bij
Donderdag 16-4-2026
Plein Eendragt 19A, 3111AR Schiedam

Binnenkijken bij
Maandag 13-4-2026
Gerrit Verboonstraat 48, 3111AA Schiedam

Direct een e-mail ontvangen bij nieuwe meldingen in deze regio?

Meld je dan GRATIS aan voor de Oozo Alert service voor De Plantage

Instellen

Meer nieuws in De Plantage

Weten hoe eenvoudig het is om af te vallen? Zonder pillen en smeersels en zonder je in het zweet te werken!
Kijk op eenvoudig-afvallen.nl

© 2012 - 2026 OOZO.nl - info@oozo.nl - Gegevens verwijderen? | Disclaimer | Privacy statement