Woning Julianalaan 34 Schiedam

Julianalaan 34, 3116JR Schiedam

Ontvang updates voor Haverschmidtkwartier

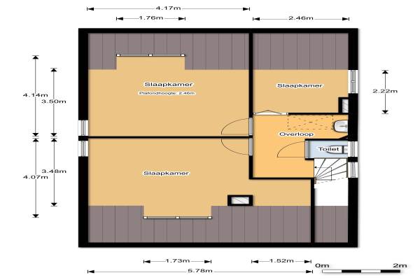
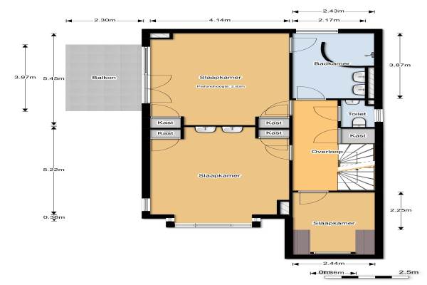
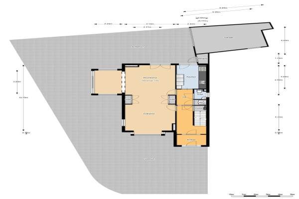
Het adres van deze woning uit 1931 is Julianalaan 34 te Schiedam. Het pand heeft een oppervlakte van 220m² en een perceeloppervlakte van 386m² en heeft 7 kamers kamers waarvan 6 slaapkamers. De geschatte waarde van deze woning is € 575.000.

Bekijk alle woningen in Haverschmidtkwartier

Gegevens van Herenhuis, hoekwoning

Bouwjaar
1931
Geschatte waarde
€ 575.000
Oppervlakte
220 m2
Inhoud
884 m3
Aantal kamers
7 kamers
Slaapkamers
6
Badkamers
1 badkamer en 2 aparte toiletten
Soort bouw
Bestaande bouw
Eigendomssituatie
Volle eigendom
Ligging
Aan park, aan rustige weg, in woonwijk, vrij uitzicht en beschutte ligging
Tuin
Zijtuin

Voorzieningen in de buurt

Boodschappen0,3 km
Grote supermarkt0,5 km
Cafetaria0,2 km
Restaurant0,2 km
Huisarts1,1 km
Ziekenhuis2,1 km
Kinderdagverblijf0,2 km
BSO0,4 km
Alle voorzieningen in Haverschmidtkwartier

Binnenkijken bij Julianalaan 34 te Schiedam

Meer meldingen in deze omgeving

Nieuw bedrijf
November 2025
Julianalaan 74A, 3116JT Schiedam

112 melding
Woensdag 26-11-2025 om 17:00
Julianalaan, Schiedam

112 melding
Vrijdag 21-11-2025 om 12:09
François Haverschmidtlaan, 3116JM Schiedam

Binnenkijken bij
Woensdag 19-11-2025
Jacob Catslaan 18, 3116BK Schiedam

112 melding
Zaterdag 15-11-2025 om 05:09
François Haverschmidtlaan, 3116JN Schiedam

112 melding
Vrijdag 14-11-2025 om 12:02
Jacob Catslaan, 3116BJ Schiedam

112 melding
Dinsdag 11-11-2025 om 20:31
François Haverschmidtlaan, 3116JM Schiedam

Binnenkijken bij
Dinsdag 11-11-2025
Burgemeester Knappertlaan 217B, 3116JD Schiedam

Direct een e-mail ontvangen bij nieuwe meldingen in deze regio?

Meld je dan GRATIS aan voor de Oozo Alert service voor Haverschmidtkwartier

Instellen

Meer nieuws in Haverschmidtkwartier

Weten hoe eenvoudig het is om af te vallen? Zonder pillen en smeersels en zonder je in het zweet te werken!
Kijk op eenvoudig-afvallen.nl

© 2012 - 2025 OOZO.nl - info@oozo.nl - Gegevens verwijderen? | Disclaimer | Privacy statement