Woning Paulus Potterstraat 55 Schiedam

Paulus Potterstraat 55, 3117XC Schiedam

Ontvang updates voor Schildersbuurt

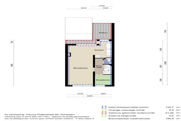
Het adres van deze woning uit 1953 is Paulus Potterstraat 55 te Schiedam. Het pand heeft een oppervlakte van 140m² en een perceeloppervlakte van 143m² en heeft 6 kamers kamers waarvan 4 slaapkamers. De geschatte waarde van deze woning is € 174.000.

Bekijk alle woningen in Schildersbuurt

Gegevens van Eengezinswoning, eindwoning

Bouwjaar
1953
Geschatte waarde
€ 174.000
Oppervlakte
140 m2
Inhoud
420 m3
Aantal kamers
6 kamers
Slaapkamers
4
Badkamers
2 badkamers en 1 apart toilet
Soort bouw
Bestaande bouw
Ligging
Aan park, aan rustige weg en in woonwijk
Tuin
Achtertuin
Achtertuin
10 m² (0,03m diep en 0,04m breed)

Voorzieningen in de buurt

Boodschappen0,3 km
Grote supermarkt0,3 km
Cafetaria0,2 km
Restaurant0,3 km
Huisarts1,0 km
Ziekenhuis1,8 km
Kinderdagverblijf0,2 km
BSO0,2 km
Alle voorzieningen in Schildersbuurt

Binnenkijken bij Paulus Potterstraat 55 te Schiedam

Meer meldingen in deze omgeving

Nieuw bedrijf
November 2025
Rembrandtlaan 27A, 3117VC Schiedam

Nieuw bedrijf
November 2025
Paulus Potterstraat 25, 3117XB Schiedam

Nieuw bedrijf
November 2025
Van Ruijsdaellaan 29A, 3117XP Schiedam

112 melding
Dinsdag 18-11-2025 om 07:04
Vlaardingerdijk, 3117EK Schiedam

Binnenkijken bij
Dinsdag 11-11-2025
Vlaardingerdijk 169B, 3117EK Schiedam

Binnenkijken bij
Dinsdag 11-11-2025
Van Ruijsdaellaan 29A, 3117XP Schiedam

Nieuw bedrijf
November 2025
Rubensplein 1B, 3117BJ Schiedam

Nieuw bedrijf
November 2025
Jozef Israëlsstraat 10A, 3117WL Schiedam

Direct een e-mail ontvangen bij nieuwe meldingen in deze regio?

Meld je dan GRATIS aan voor de Oozo Alert service voor Schildersbuurt

Instellen

Meer nieuws in Schildersbuurt

Weten hoe eenvoudig het is om af te vallen? Zonder pillen en smeersels en zonder je in het zweet te werken!
Kijk op eenvoudig-afvallen.nl

© 2012 - 2025 OOZO.nl - info@oozo.nl - Gegevens verwijderen? | Disclaimer | Privacy statement