Woning Da Costastraat 12 Schiedam

Da Costastraat 12, 3117PH Schiedam

Ontvang updates voor Schrijversbuurt

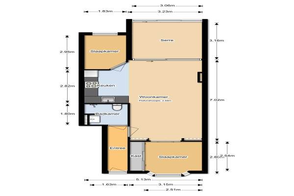
Het adres van deze woning uit 1928 is Da Costastraat 12 te Schiedam. Het pand heeft een oppervlakte van 62m² en heeft 3 kamers kamers waarvan 2 slaapkamers. De geschatte waarde van deze woning is € 125.000.

Bekijk alle woningen in Schrijversbuurt

Gegevens van Benedenwoning (appartement)

Bouwjaar
1928
Geschatte waarde
€ 125.000
Oppervlakte
62 m2
Inhoud
202 m3
Aantal kamers
3 kamers
Slaapkamers
2
Badkamers
1 badkamer
Soort bouw
Bestaande bouw
Eigendomssituatie
Volle eigendom
Ligging
Aan rustige weg en in woonwijk
Tuin
Achtertuin
Achtertuin
25 m² (5m diep en 5m breed)

Voorzieningen in de buurt

Boodschappen0,2 km
Grote supermarkt0,3 km
Cafetaria0,2 km
Restaurant0,2 km
Huisarts0,7 km
Ziekenhuis1,8 km
Kinderdagverblijf0,2 km
BSO0,2 km
Alle voorzieningen in Schrijversbuurt

Binnenkijken bij Da Costastraat 12 te Schiedam

Meer meldingen in deze omgeving

Nieuw bedrijf
Februari 2026
Da Costastraat 34, 3117PH Schiedam

Nieuw bedrijf
Februari 2026
Vondellaan 33B, 3117PT Schiedam

112 melding
Donderdag 12-2-2026 om 13:39
Graaf Florisstraat, 3117PK Schiedam

112 melding
Dinsdag 10-2-2026 om 22:52
Vlaardingerdijk, 3117EH Schiedam

112 melding
Maandag 9-2-2026 om 19:43
Jan van Avennesstraat, 3117PR Schiedam

112 melding
Zondag 8-2-2026 om 08:51
Nicolaas Beetsstraat, 3117SM Schiedam

Binnenkijken bij
Donderdag 5-2-2026
De Genestetstraat 1B, 3117TA Schiedam

Binnenkijken bij
Donderdag 5-2-2026
Nicolaas Beetsstraat 8B, 3117SP Schiedam

Direct een e-mail ontvangen bij nieuwe meldingen in deze regio?

Meld je dan GRATIS aan voor de Oozo Alert service voor Schrijversbuurt

Instellen

Meer nieuws in Schrijversbuurt

Weten hoe eenvoudig het is om af te vallen? Zonder pillen en smeersels en zonder je in het zweet te werken!
Kijk op eenvoudig-afvallen.nl

© 2012 - 2026 OOZO.nl - info@oozo.nl - Gegevens verwijderen? | Disclaimer | Privacy statement