Woning Narcissenstraat 1 Bocholtz

Narcissenstraat 1, 6351BP Bocholtz

Ontvang updates voor Bocholtz

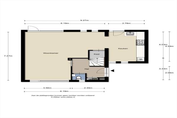
Het adres van deze woning uit 1973 is Narcissenstraat 1 te Bocholtz. Het pand heeft een oppervlakte van 134m² en een perceeloppervlakte van 233m² en heeft 7 kamers kamers waarvan 4 slaapkamers. De geschatte waarde van deze woning is € 199.500.

Bekijk alle woningen in Bocholtz

Gegevens van Eengezinswoning, hoekwoning

Bouwjaar
1973
Geschatte waarde
€ 199.500
Oppervlakte
134 m2
Inhoud
473 m3
Aantal kamers
7 kamers
Slaapkamers
4
Soort bouw
Bestaande bouw
Ligging
Landelijk gelegen, in woonwijk, aan rustige weg en beschutte ligging
Tuin
Voortuin en zonneterras

Voorzieningen in de buurt

Boodschappen0,5 km
Grote supermarkt0,6 km
Cafetaria0,5 km
Restaurant0,4 km
Huisarts0,7 km
Ziekenhuis8,4 km
Kinderdagverblijf0,7 km
BSO0,7 km
Alle voorzieningen in Bocholtz

Binnenkijken bij Narcissenstraat 1 te Bocholtz

Meer meldingen in deze omgeving

Nieuw bedrijf
December 2025
Elf Schoorstenen 32, 6351MD Bocholtz

Binnenkijken bij
Donderdag 4-12-2025
Patersweg 9, 6351EX Bocholtz

Binnenkijken bij
Donderdag 4-12-2025
Minister Ruijsstraat 1A, 6351CH Bocholtz

Nieuw bedrijf
December 2025
Bernhardstraat 20, 6351AX Bocholtz

Nieuw bedrijf
December 2025
Emmastraat 35, 6351CT Bocholtz

Nieuw bedrijf
December 2025
Minister Ruijsstraat 21, 6351CH Bocholtz

Nieuw bedrijf
December 2025
Overhuizerstraat 29, 6351BE Bocholtz

Nieuw bedrijf
November 2025
Op de Weijer 43, 6351CS Bocholtz

Direct een e-mail ontvangen bij nieuwe meldingen in deze regio?

Meld je dan GRATIS aan voor de Oozo Alert service voor Bocholtz

Instellen

Meer nieuws in Bocholtz

Weten hoe eenvoudig het is om af te vallen? Zonder pillen en smeersels en zonder je in het zweet te werken!
Kijk op eenvoudig-afvallen.nl

© 2012 - 2025 OOZO.nl - info@oozo.nl - Gegevens verwijderen? | Disclaimer | Privacy statement