Woning Kloosterstraat 21 Geleen

Kloosterstraat 21, 6162XC Geleen

Ontvang updates voor Geleen-Noord

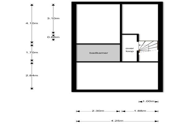
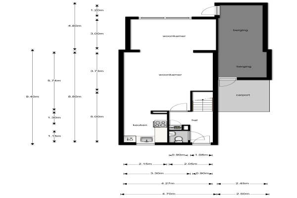
Het adres van deze woning uit 1990 is Kloosterstraat 21 te Geleen. Het pand heeft een oppervlakte van 105m² en een perceeloppervlakte van 186m² en heeft 5 kamers kamers waarvan 4 slaapkamers. De geschatte waarde van deze woning is € 150.000.

Bekijk alle woningen in Geleen-Noord

Gegevens van Eengezinswoning, geschakelde 2-onder-1-kapwoning

Bouwjaar
1990
Geschatte waarde
€ 150.000
Oppervlakte
105 m2
Inhoud
380 m3
Aantal kamers
5 kamers
Slaapkamers
4
Badkamers
1 badkamer en 1 apart toilet
Soort bouw
Bestaande bouw
Eigendomssituatie
Volle eigendom
Ligging
In woonwijk en beschutte ligging
Tuin
Achtertuin en voortuin
Achtertuin
81 m² (11,2m diep en 7,2m breed)

Voorzieningen in de buurt

Boodschappen0,9 km
Grote supermarkt1,0 km
Cafetaria0,7 km
Restaurant0,6 km
Huisarts0,7 km
Ziekenhuis1,5 km
Kinderdagverblijf0,9 km
BSO1,1 km
Alle voorzieningen in Geleen-Noord

Binnenkijken bij Kloosterstraat 21 te Geleen

Meer meldingen in deze omgeving

112 melding
Zaterdag 14-3-2026 om 17:30
Dordogne, 6162KN Geleen

112 melding
Zaterdag 14-3-2026 om 17:15
Oude Maastrichterweg, Geleen

112 melding
Zaterdag 14-3-2026 om 09:32
Dr. Nolenslaan, 6162EV Geleen

112 melding
Vrijdag 13-3-2026 om 13:03
Dr. Schaepmanstraat, 6162XM Geleen

112 melding
Vrijdag 13-3-2026 om 13:03
Dr. Schaepmanstraat, 6162XM Geleen

112 melding
Donderdag 12-3-2026 om 16:08
Oude Maastrichterweg, Geleen

112 melding
Donderdag 12-3-2026 om 11:16
Thüringen, 6162KL Geleen

112 melding
Donderdag 12-3-2026 om 10:59
Rijksweg Noord, 6162AK Geleen

Direct een e-mail ontvangen bij nieuwe meldingen in deze regio?

Meld je dan GRATIS aan voor de Oozo Alert service voor Geleen-Noord

Instellen

Meer nieuws in Geleen-Noord

Weten hoe eenvoudig het is om af te vallen? Zonder pillen en smeersels en zonder je in het zweet te werken!
Kijk op eenvoudig-afvallen.nl

© 2012 - 2026 OOZO.nl - info@oozo.nl - Gegevens verwijderen? | Disclaimer | Privacy statement