Woning Henri Hermanslaan 162 Geleen

Henri Hermanslaan 162, 6162GJ Geleen

Ontvang updates voor Geleen-Noord

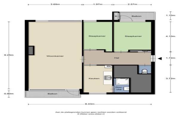
Het adres van deze woning is Henri Hermanslaan 162 te Geleen. Het pand heeft een oppervlakte van 71m² en heeft 4 kamers kamers waarvan 2 slaapkamers. De geschatte waarde van deze woning is € 79.000.

Bekijk alle woningen in Geleen-Noord

Gegevens van Portiekflat (appartement)

Geschatte waarde
€ 79.000
Oppervlakte
71 m2
Inhoud
210 m3
Aantal kamers
4 kamers
Slaapkamers
2
Badkamers
1 badkamer en 1 apart toilet
Soort bouw
Bestaande bouw
Ligging
In woonwijk

Voorzieningen in de buurt

Boodschappen0,9 km
Grote supermarkt1,0 km
Cafetaria0,7 km
Restaurant0,6 km
Huisarts0,7 km
Ziekenhuis1,5 km
Kinderdagverblijf0,9 km
BSO1,1 km
Alle voorzieningen in Geleen-Noord

Binnenkijken bij Henri Hermanslaan 162 te Geleen

Meer meldingen in deze omgeving

112 melding
Zaterdag 14-3-2026 om 17:30
Dordogne, 6162KN Geleen

112 melding
Zaterdag 14-3-2026 om 17:15
Oude Maastrichterweg, Geleen

112 melding
Zaterdag 14-3-2026 om 09:32
Dr. Nolenslaan, 6162EV Geleen

112 melding
Vrijdag 13-3-2026 om 13:03
Dr. Schaepmanstraat, 6162XM Geleen

112 melding
Vrijdag 13-3-2026 om 13:03
Dr. Schaepmanstraat, 6162XM Geleen

112 melding
Donderdag 12-3-2026 om 16:08
Oude Maastrichterweg, Geleen

112 melding
Donderdag 12-3-2026 om 11:16
Thüringen, 6162KL Geleen

112 melding
Donderdag 12-3-2026 om 10:59
Rijksweg Noord, 6162AK Geleen

Direct een e-mail ontvangen bij nieuwe meldingen in deze regio?

Meld je dan GRATIS aan voor de Oozo Alert service voor Geleen-Noord

Instellen

Meer nieuws in Geleen-Noord

Weten hoe eenvoudig het is om af te vallen? Zonder pillen en smeersels en zonder je in het zweet te werken!
Kijk op eenvoudig-afvallen.nl

© 2012 - 2026 OOZO.nl - info@oozo.nl - Gegevens verwijderen? | Disclaimer | Privacy statement