Woning Beekstraat 24 Limbricht

Beekstraat 24, 6141BE Limbricht

Ontvang updates voor Limbricht

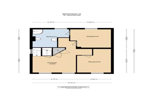
Het adres van deze woning uit 1905 is Beekstraat 24 te Limbricht. Het pand heeft een oppervlakte van 124m² en een perceeloppervlakte van 375m² en heeft 4 kamers kamers waarvan 3 slaapkamers. De geschatte waarde van deze woning is € 269.000.

Bekijk alle woningen in Limbricht

Gegevens van Eengezinswoning

Bouwjaar
1905
Geschatte waarde
€ 269.000
Oppervlakte
124 m2
Inhoud
650 m3
Aantal kamers
4 kamers
Slaapkamers
3
Badkamers
1 badkamer en 1 apart toilet
Soort bouw
Bestaande bouw
Eigendomssituatie
Volle eigendom
Ligging
Aan rustige weg en in woonwijk
Tuin
Tuin

Voorzieningen in de buurt

Boodschappen0,6 km
Grote supermarkt1,7 km
Cafetaria0,3 km
Restaurant0,4 km
Huisarts0,5 km
Ziekenhuis4,1 km
Kinderdagverblijf0,3 km
BSO0,3 km
Alle voorzieningen in Limbricht

Binnenkijken bij Beekstraat 24 te Limbricht

Meer meldingen in deze omgeving

112 melding
Dinsdag 25-11-2025 om 08:02
Martin Luther Kingstraat, 6141DA Limbricht

112 melding
Maandag 24-11-2025 om 14:42
Ringweg, 6141LM Limbricht

112 melding
Maandag 24-11-2025 om 14:42
Allee & Hasseltsebaan, 6141 Limbricht

112 melding
Maandag 24-11-2025 om 13:15
Prof. Mentenlaan, Limbricht

112 melding
Maandag 24-11-2025 om 10:53
Maaslandstraat, 6141BX Limbricht

112 melding
Maandag 24-11-2025 om 10:15
Ringweg, 6141LM Limbricht

112 melding
Maandag 24-11-2025 om 10:13
Hinschenveld, 6141CH Limbricht

112 melding
Maandag 24-11-2025 om 10:11
Ringweg, 6141LM Limbricht

Direct een e-mail ontvangen bij nieuwe meldingen in deze regio?

Meld je dan GRATIS aan voor de Oozo Alert service voor Limbricht

Instellen

Meer nieuws in Limbricht

Weten hoe eenvoudig het is om af te vallen? Zonder pillen en smeersels en zonder je in het zweet te werken!
Kijk op eenvoudig-afvallen.nl

© 2012 - 2025 OOZO.nl - info@oozo.nl - Gegevens verwijderen? | Disclaimer | Privacy statement