Woning Beelaertsstraat 33 Obbicht

Beelaertsstraat 33, 6125RA Obbicht

Ontvang updates voor Obbicht

Het adres van deze woning uit 1989 is Beelaertsstraat 33 te Obbicht. Het pand heeft een oppervlakte van 127m² en een perceeloppervlakte van 420m² en heeft 5 kamers kamers waarvan 4 slaapkamers. De geschatte waarde van deze woning is € 394.500.

Bekijk alle woningen in Obbicht

Gegevens van Eengezinswoning

Bouwjaar
1989
Geschatte waarde
€ 394.500
Oppervlakte
127 m2
Inhoud
544 m3
Aantal kamers
5 kamers
Slaapkamers
4
Badkamers
1 badkamer
Soort bouw
Bestaande bouw
Eigendomssituatie
Volle eigendom
Tuin
Tuin
Achtertuin
0,01 meter diep en 0,01 meter breed

Voorzieningen in de buurt

Boodschappen0,5 km
Grote supermarkt1,1 km
Cafetaria0,4 km
Restaurant1,8 km
Huisarts0,4 km
Ziekenhuis9,0 km
Kinderdagverblijf0,4 km
BSO1,6 km
Alle voorzieningen in Obbicht

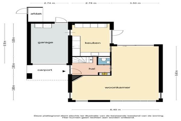
Binnenkijken bij Beelaertsstraat 33 te Obbicht

Meer meldingen in deze omgeving

112 melding
Vrijdag 24-4-2026 om 11:45
Ecrevissestraat, 6125AW Obbicht

112 melding
Vrijdag 24-4-2026 om 11:45
Ecrevissestraat, 6125AW Obbicht

112 melding
Vrijdag 24-4-2026 om 09:12
Ecrevissestraat, 6125AW Obbicht

112 melding
Vrijdag 24-4-2026 om 09:12
Ecrevissestraat, 6125AW Obbicht

112 melding
Donderdag 23-4-2026 om 16:22
Beelaertsstraat, 6125RA Obbicht

112 melding
Donderdag 23-4-2026 om 14:59
Europaplantsoen, 6125AH Obbicht

112 melding
Donderdag 23-4-2026 om 09:07
Pastoor Janssenlaan, 6125BK Obbicht

112 melding
Woensdag 22-4-2026 om 22:03
Bornerweg, 6125BH Obbicht

Direct een e-mail ontvangen bij nieuwe meldingen in deze regio?

Meld je dan GRATIS aan voor de Oozo Alert service voor Obbicht

Instellen

Meer nieuws in Obbicht

Weten hoe eenvoudig het is om af te vallen? Zonder pillen en smeersels en zonder je in het zweet te werken!
Kijk op eenvoudig-afvallen.nl

© 2012 - 2026 OOZO.nl - info@oozo.nl - Gegevens verwijderen? | Disclaimer | Privacy statement