Woning Willy Dolsstraat 19 Sittard

Willy Dolsstraat 19, 6136TG Sittard

Ontvang updates voor Baandert

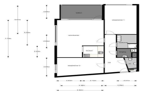
Het adres van deze woning uit 2003 is Willy Dolsstraat 19 te Sittard. Het pand heeft een oppervlakte van 94m² en heeft 3 kamers kamers waarvan 2 slaapkamers. De geschatte waarde van deze woning is € 239.000.

Bekijk alle woningen in Baandert

Gegevens van Portiekflat (appartement)

Bouwjaar
2003
Geschatte waarde
€ 239.000
Oppervlakte
94 m2
Inhoud
339 m3
Aantal kamers
3 kamers
Slaapkamers
2
Soort bouw
Bestaande bouw
Eigendomssituatie
Volle eigendom
Ligging
In woonwijk en vrij uitzicht

Voorzieningen in de buurt

Boodschappen0,5 km
Grote supermarkt0,7 km
Cafetaria0,3 km
Restaurant0,7 km
Huisarts0,5 km
Ziekenhuis3,6 km
Kinderdagverblijf0,6 km
BSO0,8 km
Alle voorzieningen in Baandert

Binnenkijken bij Willy Dolsstraat 19 te Sittard

Meer meldingen in deze omgeving

112 melding
Dinsdag 18-11-2025 om 14:24
Hendrik Consciencestraat, 6136HN Sittard

112 melding
Dinsdag 18-11-2025 om 10:02
Baandert, 6136ER Sittard

112 melding
Dinsdag 18-11-2025 om 09:18
Frans Erensstraat, 6136JG Sittard

112 melding
Dinsdag 18-11-2025 om 09:18
Baandert, 6136ER Sittard

Binnenkijken bij
Dinsdag 18-11-2025
Ruijs de Beerenbrouckstraat 1, 6136GA Sittard

112 melding
Maandag 17-11-2025 om 17:14
Baandert, 6136ER Sittard

112 melding
Maandag 17-11-2025 om 16:17
Baandert, 6136ER Sittard

112 melding
Maandag 17-11-2025 om 16:17
Baandert, 6136ER Sittard

Direct een e-mail ontvangen bij nieuwe meldingen in deze regio?

Meld je dan GRATIS aan voor de Oozo Alert service voor Baandert

Instellen

Meer nieuws in Baandert

Weten hoe eenvoudig het is om af te vallen? Zonder pillen en smeersels en zonder je in het zweet te werken!
Kijk op eenvoudig-afvallen.nl

© 2012 - 2025 OOZO.nl - info@oozo.nl - Gegevens verwijderen? | Disclaimer | Privacy statement