Woning Rossinistraat 13 Sliedrecht

Rossinistraat 13, 3363KD Sliedrecht

Ontvang updates voor Baanhoek-West

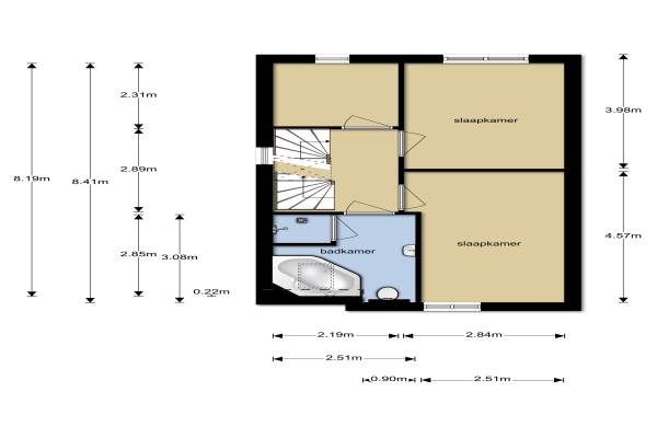
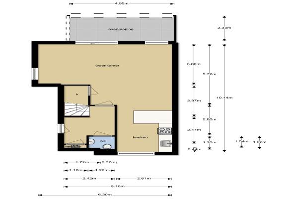
Het adres van deze woning uit 2011 is Rossinistraat 13 te Sliedrecht. Het pand heeft een oppervlakte van 124m² en een perceeloppervlakte van 225m² en heeft 6 kamers kamers waarvan 5 slaapkamers. De geschatte waarde van deze woning is € 325.000.

Bekijk alle woningen in Baanhoek-West

Gegevens van Eengezinswoning, hoekwoning

Bouwjaar
2011
Geschatte waarde
€ 325.000
Oppervlakte
124 m2
Inhoud
433 m3
Aantal kamers
6 kamers
Slaapkamers
5
Badkamers
1 apart toilet
Soort bouw
Bestaande bouw
Eigendomssituatie
Volle eigendom
Ligging
Aan rustige weg en in woonwijk
Tuin
Achtertuin, voortuin en zijtuin

Voorzieningen in de buurt

Boodschappen2,0 km
Grote supermarkt1,7 km
Cafetaria0,8 km
Restaurant2,0 km
Huisarts1,5 km
Ziekenhuis3,3 km
Kinderdagverblijf0,6 km
BSO0,6 km
Alle voorzieningen in Baanhoek-West

Binnenkijken bij Rossinistraat 13 te Sliedrecht

Meer meldingen in deze omgeving

112 melding
Woensdag 5-11-2025 om 13:26
Beethovenstraat, 3363LK Sliedrecht

112 melding
Woensdag 5-11-2025 om 10:51
Sonate, 3363LA Sliedrecht

112 melding
Dinsdag 4-11-2025 om 19:58
Sonate, 3363LA Sliedrecht

112 melding
Dinsdag 4-11-2025 om 19:58
Sonate, 3363LA Sliedrecht

112 melding
Dinsdag 4-11-2025 om 18:49
Sonate, 3363LA Sliedrecht

112 melding
Dinsdag 4-11-2025 om 18:49
Sonate, 3363LA Sliedrecht

112 melding
Dinsdag 4-11-2025 om 15:23
Mozartplantsoen, 3363LM Sliedrecht

112 melding
Dinsdag 4-11-2025 om 15:02
Sonate, 3363LA Sliedrecht

Direct een e-mail ontvangen bij nieuwe meldingen in deze regio?

Meld je dan GRATIS aan voor de Oozo Alert service voor Baanhoek-West

Instellen

Meer nieuws in Baanhoek-West

Weten hoe eenvoudig het is om af te vallen? Zonder pillen en smeersels en zonder je in het zweet te werken!
Kijk op eenvoudig-afvallen.nl

© 2012 - 2025 OOZO.nl - info@oozo.nl - Gegevens verwijderen? | Disclaimer | Privacy statement