Woning Smalweer 48 Sliedrecht

Smalweer 48, 3363JJ Sliedrecht

Ontvang updates voor De Weren

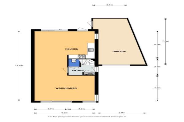
Het adres van deze woning uit 1987 is Smalweer 48 te Sliedrecht. Het pand heeft een oppervlakte van 105m² en een perceeloppervlakte van 265m² en heeft 5 kamers kamers waarvan 4 slaapkamers. De geschatte waarde van deze woning is € 319.000.

Bekijk alle woningen in De Weren

Gegevens van Eengezinswoning, geschakelde 2-onder-1-kapwoning

Bouwjaar
1987
Geschatte waarde
€ 319.000
Oppervlakte
105 m2
Inhoud
330 m3
Aantal kamers
5 kamers
Slaapkamers
4
Badkamers
1 badkamer en 1 apart toilet
Soort bouw
Bestaande bouw
Eigendomssituatie
Volle eigendom
Ligging
Aan rustige weg en in woonwijk
Tuin
Achtertuin en voortuin
Achtertuin
85 m² (12m diep en 7,5m breed)

Voorzieningen in de buurt

Boodschappen1,2 km
Grote supermarkt1,2 km
Cafetaria1,1 km
Restaurant1,2 km
Huisarts0,7 km
Ziekenhuis2,8 km
Kinderdagverblijf0,7 km
BSO0,5 km
Alle voorzieningen in De Weren

Binnenkijken bij Smalweer 48 te Sliedrecht

Meer meldingen in deze omgeving

112 melding
Woensdag 28-1-2026 om 10:48
Groenenweer, 3363XP Sliedrecht

112 melding
Woensdag 28-1-2026 om 08:24
Prinsenweer, 3363JK Sliedrecht

112 melding
Woensdag 28-1-2026 om 08:24
Prinsenweer, 3363JK Sliedrecht

112 melding
Dinsdag 27-1-2026 om 11:37
Koningsweer, 3363XE Sliedrecht

112 melding
Dinsdag 27-1-2026 om 11:30
Dorlandsweer, 3363JD Sliedrecht

112 melding
Dinsdag 27-1-2026 om 11:30
Dorlandsweer, 3363JD Sliedrecht

112 melding
Dinsdag 27-1-2026 om 11:25
Groenenweer, 3363XP Sliedrecht

112 melding
Dinsdag 27-1-2026 om 11:25
Groenenweer, 3363XP Sliedrecht

Direct een e-mail ontvangen bij nieuwe meldingen in deze regio?

Meld je dan GRATIS aan voor de Oozo Alert service voor De Weren

Instellen

Meer nieuws in De Weren

Weten hoe eenvoudig het is om af te vallen? Zonder pillen en smeersels en zonder je in het zweet te werken!
Kijk op eenvoudig-afvallen.nl

© 2012 - 2026 OOZO.nl - info@oozo.nl - Gegevens verwijderen? | Disclaimer | Privacy statement