Woning Nieuwesluisweg 1A 702 BRESKENS

Nieuwesluisweg 1A 702, 4511RG BRESKENS

Ontvang updates voor Verspreide huizen Breskens

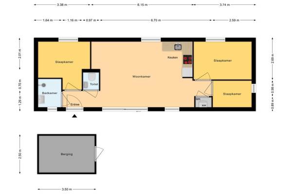
Het adres van deze woning uit 2019 is Nieuwesluisweg 1A 702 te BRESKENS. Het pand heeft een oppervlakte van 52m² en een perceeloppervlakte van 228m² en heeft 4 kamers kamers waarvan 3 slaapkamers. De geschatte waarde van deze woning is € 275.000.

Bekijk alle woningen in Verspreide huizen Breskens

Gegevens van Bungalow

Bouwjaar
2019
Geschatte waarde
€ 275.000
Oppervlakte
52 m2
Aantal kamers
4 kamers
Slaapkamers
3
Tuin
Tuin

Voorzieningen in de buurt

Boodschappen1,4 km
Grote supermarkt1,5 km
Cafetaria1,9 km
Restaurant1,4 km
Huisarts2,0 km
Ziekenhuis11,3 km
Kinderdagverblijf2,3 km
BSO2,3 km
Alle voorzieningen in Verspreide huizen Breskens

Binnenkijken bij Nieuwesluisweg 1A 702 te BRESKENS

Meer meldingen in deze omgeving

Binnenkijken bij
Dinsdag 11-11-2025
Het Heem 66, 4511PP Breskens

Binnenkijken bij
Dinsdag 11-11-2025
Langeweg 101, 4511RN Breskens

Binnenkijken bij
Woensdag 29-10-2025
Provincialeweg 56, 4503GG Groede

Binnenkijken bij
Zondag 19-10-2025
't Killetje 6, 4511RR Breskens

Binnenkijken bij
Woensdag 24-9-2025
Nieuwesluisweg 34, 4511RE Breskens

Binnenkijken bij
Maandag 22-9-2025
Buijzenpolderdijk 3, 4511PG Breskens

Nieuw bedrijf
September 2025
Deltahoek 7, 4511PA Breskens

Onroerend goed
Vrijdag 8-8-2025
Deltahoek 4-A, 4511PA Breskens

Direct een e-mail ontvangen bij nieuwe meldingen in deze regio?

Meld je dan GRATIS aan voor de Oozo Alert service voor Verspreide huizen Breskens

Instellen

Meer nieuws in Verspreide huizen Breskens

Weten hoe eenvoudig het is om af te vallen? Zonder pillen en smeersels en zonder je in het zweet te werken!
Kijk op eenvoudig-afvallen.nl

© 2012 - 2025 OOZO.nl - info@oozo.nl - Gegevens verwijderen? | Disclaimer | Privacy statement