Woning Vlamingpolderweg 22 Cadzand

Vlamingpolderweg 22, 4506HZ Cadzand

Ontvang updates voor Cadzand-Bad

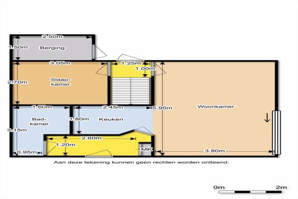
Het adres van deze woning uit 1987 is Vlamingpolderweg 22 te Cadzand. Het pand heeft een oppervlakte van 70m² en een perceeloppervlakte van 1001m² en heeft 4 kamers kamers waarvan 3 slaapkamers.

Bekijk alle woningen in Cadzand-Bad

Gegevens van Bungalow, vrijstaande woning (semi-bungalow)

Bouwjaar
1987
Geschatte waarde
€ 0
Oppervlakte
70 m2
Inhoud
225 m3
Aantal kamers
4 kamers
Slaapkamers
3
Soort bouw
Bestaande bouw
Tuin
Tuin rondom

Voorzieningen in de buurt

Boodschappen0,3 km
Grote supermarkt0,5 km
Cafetaria0,3 km
Restaurant0,2 km
Huisarts2,2 km
Ziekenhuis9,8 km
Kinderdagverblijf2,4 km
BSO2,4 km
Alle voorzieningen in Cadzand-Bad

Binnenkijken bij Vlamingpolderweg 22 te Cadzand

Meer meldingen in deze omgeving

Binnenkijken bij
Dinsdag 16-12-2025
Boulevard de Wielingen 913, 4506JH Cadzand

Binnenkijken bij
Donderdag 4-12-2025
Boulevard de Wielingen 26102, 4506JJ Cadzand

Binnenkijken bij
Vrijdag 28-11-2025
Vlamingpolderweg 4E001, 4506HZ Cadzand

112 melding
Dinsdag 25-11-2025 om 22:31
Scheldestraat, 4506KL Cadzand

Binnenkijken bij
Dinsdag 25-11-2025
Boulevard de Wielingen 76004, 4506JL Cadzand

Binnenkijken bij
Dinsdag 25-11-2025
Vlamingpolderweg 18001, 4506HZ Cadzand

112 melding
Vrijdag 14-11-2025 om 18:55
Stijn Albregtsstraat, 4506GA Cadzand

Binnenkijken bij
Vrijdag 14-11-2025
Boulevard de Wielingen 57203, 4506JL Cadzand

Direct een e-mail ontvangen bij nieuwe meldingen in deze regio?

Meld je dan GRATIS aan voor de Oozo Alert service voor Cadzand-Bad

Instellen

Meer nieuws in Cadzand-Bad

Weten hoe eenvoudig het is om af te vallen? Zonder pillen en smeersels en zonder je in het zweet te werken!
Kijk op eenvoudig-afvallen.nl

© 2012 - 2025 OOZO.nl - info@oozo.nl - Gegevens verwijderen? | Disclaimer | Privacy statement