Woning Het Heem 16 Drachten

Het Heem 16, 9203XV Drachten

Ontvang updates voor De Bouwen

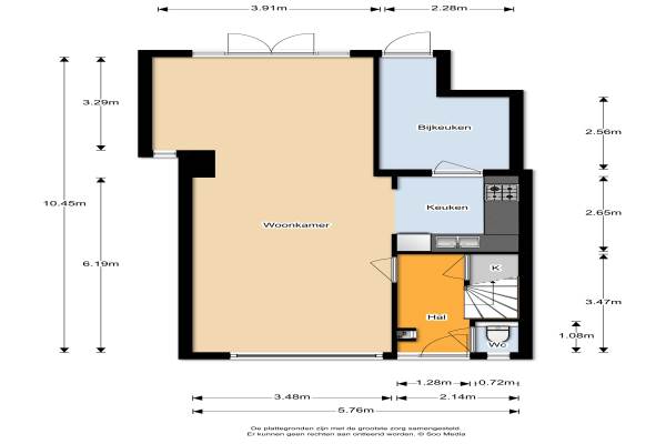
Het adres van deze woning uit 1955 is Het Heem 16 te Drachten. Het pand heeft een oppervlakte van 111m² en een perceeloppervlakte van 254m² en heeft 5 kamers kamers waarvan 4 slaapkamers. De geschatte waarde van deze woning is € 169.000.

Bekijk alle woningen in De Bouwen

Gegevens van Eengezinswoning, hoekwoning

Bouwjaar
1955
Geschatte waarde
€ 169.000
Oppervlakte
111 m2
Inhoud
400 m3
Aantal kamers
5 kamers
Slaapkamers
4
Badkamers
1 badkamer
Soort bouw
Bestaande bouw
Eigendomssituatie
Volle eigendom
Ligging
Aan rustige weg, in centrum en in woonwijk
Tuin
Achtertuin en voortuin
Achtertuin
150 m² (20m diep en 7,5m breed)

Voorzieningen in de buurt

Boodschappen0,5 km
Grote supermarkt0,6 km
Cafetaria0,3 km
Restaurant0,5 km
Huisarts0,6 km
Ziekenhuis1,0 km
Kinderdagverblijf0,4 km
BSO0,3 km
Alle voorzieningen in De Bouwen

Binnenkijken bij Het Heem 16 te Drachten

Meer meldingen in deze omgeving

Nieuw bedrijf
November 2025
Burgemeester Wuiteweg 43, 9203KA Drachten

112 melding
Donderdag 20-11-2025 om 19:45
De Warren, 9203HT Drachten

Faillissement
Donderdag 20-11-2025
Haverstuk 75, 9203JD Drachten

Binnenkijken bij
Vrijdag 14-11-2025
Het Heem 1, 9203XV Drachten

Binnenkijken bij
Dinsdag 11-11-2025
Burgemeester Wuiteweg 259, 9203KH Drachten

Binnenkijken bij
Dinsdag 11-11-2025
De Zwaden 22, 9203GK Drachten

Nieuw bedrijf
November 2025
De Opgang 2, 9203GD Drachten

112 melding
Dinsdag 4-11-2025 om 19:03
De Drift, Drachten

Direct een e-mail ontvangen bij nieuwe meldingen in deze regio?

Meld je dan GRATIS aan voor de Oozo Alert service voor De Bouwen

Instellen

Meer nieuws in De Bouwen

Weten hoe eenvoudig het is om af te vallen? Zonder pillen en smeersels en zonder je in het zweet te werken!
Kijk op eenvoudig-afvallen.nl

© 2012 - 2025 OOZO.nl - info@oozo.nl - Gegevens verwijderen? | Disclaimer | Privacy statement