Woning 't Swin 41 Drachten

't Swin 41, 9201XW Drachten

Ontvang updates voor De Swetten

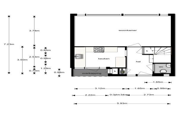
Het adres van deze woning uit 1965 is 't Swin 41 te Drachten. Het pand heeft een oppervlakte van 85m² en heeft 5 kamers kamers waarvan 4 slaapkamers. De geschatte waarde van deze woning is € 139.500.

Bekijk alle woningen in De Swetten

Gegevens van Maisonnette (appartement)

Bouwjaar
1965
Geschatte waarde
€ 139.500
Oppervlakte
85 m2
Inhoud
264 m3
Aantal kamers
5 kamers
Slaapkamers
4
Soort bouw
Bestaande bouw
Eigendomssituatie
Volle eigendom
Ligging
In woonwijk en vrij uitzicht

Voorzieningen in de buurt

Boodschappen0,4 km
Grote supermarkt0,8 km
Cafetaria0,4 km
Restaurant0,5 km
Huisarts0,7 km
Ziekenhuis3,0 km
Kinderdagverblijf0,5 km
BSO0,6 km
Alle voorzieningen in De Swetten

Binnenkijken bij 't Swin 41 te Drachten

Meer meldingen in deze omgeving

Binnenkijken bij
Zondag 28-9-2025
De Ee 42, 9201BJ Drachten

Binnenkijken bij
Donderdag 25-9-2025
Weversburen 39, 9201EG Drachten

Binnenkijken bij
Vrijdag 19-9-2025
Paradijske 3A, 9201GA Drachten

Binnenkijken bij
Vrijdag 19-9-2025
De Geeuw 15, 9201AD Drachten

112 melding
Woensdag 17-9-2025 om 10:33
Oliemolenstraat, 9203ZN Drachten

112 melding
Woensdag 17-9-2025 om 10:33
Oliemolenstraat, 9203ZN Drachten

112 melding
Woensdag 17-9-2025 om 10:29
Oliemolenstraat, 9203ZN Drachten

Onroerend goed
Woensdag 17-9-2025
De Lange West 9, 9201CD Drachten

Direct een e-mail ontvangen bij nieuwe meldingen in deze regio?

Meld je dan GRATIS aan voor de Oozo Alert service voor De Swetten

Instellen

Meer nieuws in De Swetten

Weten hoe eenvoudig het is om af te vallen? Zonder pillen en smeersels en zonder je in het zweet te werken!
Kijk op eenvoudig-afvallen.nl

© 2012 - 2025 OOZO.nl - info@oozo.nl - Gegevens verwijderen? | Disclaimer | Privacy statement