Woning Voorhuis 65 Drachten

Voorhuis 65, 9205BD Drachten

Ontvang updates voor De Trisken

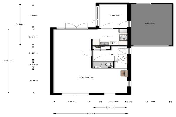
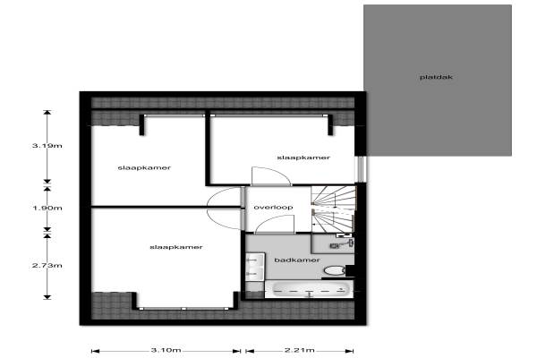
Het adres van deze woning uit 1994 is Voorhuis 65 te Drachten. Het pand heeft een oppervlakte van 110m² en een perceeloppervlakte van 318m² en heeft 5 kamers kamers waarvan 4 slaapkamers. De geschatte waarde van deze woning is € 209.000.

Bekijk alle woningen in De Trisken

Gegevens van Eengezinswoning, 2-onder-1-kapwoning

Bouwjaar
1994
Geschatte waarde
€ 209.000
Oppervlakte
110 m2
Inhoud
330 m3
Aantal kamers
5 kamers
Slaapkamers
4
Badkamers
1 badkamer en 1 apart toilet
Soort bouw
Bestaande bouw
Eigendomssituatie
Volle eigendom
Ligging
Aan rustige weg en in woonwijk
Tuin
Achtertuin en voortuin
Achtertuin
100 m² (12,5m diep en 9,5m breed)

Voorzieningen in de buurt

Boodschappen2,3 km
Grote supermarkt2,2 km
Cafetaria0,5 km
Restaurant2,3 km
Huisarts1,0 km
Ziekenhuis5,1 km
Kinderdagverblijf0,5 km
BSO0,4 km
Alle voorzieningen in De Trisken

Binnenkijken bij Voorhuis 65 te Drachten

Meer meldingen in deze omgeving

Binnenkijken bij
Vrijdag 27-3-2026
Stal 193, 9205AL Drachten

Binnenkijken bij
Vrijdag 27-3-2026
Hooizolder 40, 9205CA Drachten

Nieuw bedrijf
Maart 2026
Hanebalken 179, 9205CL Drachten

Nieuw bedrijf
Maart 2026
Hooizolder 310, 9205CT Drachten

Binnenkijken bij
Maandag 23-3-2026
Dorsvloer 39, 9205BN Drachten

Binnenkijken bij
Maandag 23-3-2026
Voergang 85, 9205AW Drachten

Binnenkijken bij
Zaterdag 14-3-2026
Dorsvloer 140, 9205BM Drachten

Binnenkijken bij
Donderdag 12-3-2026
Hanebalken 19, 9205CL Drachten

Direct een e-mail ontvangen bij nieuwe meldingen in deze regio?

Meld je dan GRATIS aan voor de Oozo Alert service voor De Trisken

Instellen

Meer nieuws in De Trisken

Weten hoe eenvoudig het is om af te vallen? Zonder pillen en smeersels en zonder je in het zweet te werken!
Kijk op eenvoudig-afvallen.nl

© 2012 - 2026 OOZO.nl - info@oozo.nl - Gegevens verwijderen? | Disclaimer | Privacy statement