Woning Graverij 9 Drachten

Graverij 9, 9202NL Drachten

Ontvang updates voor De Venen

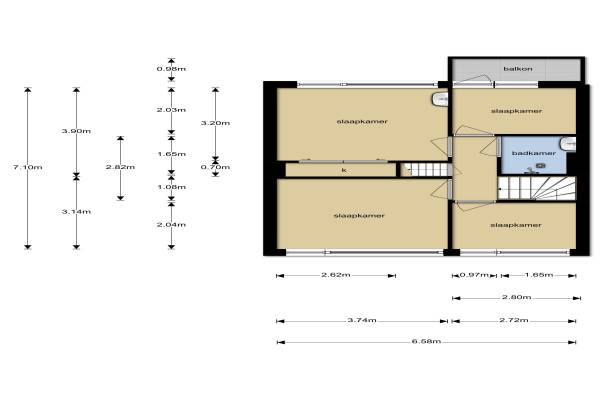
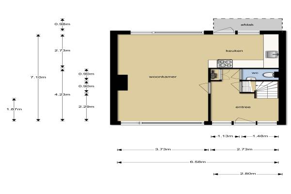
Het adres van deze woning uit 1964 is Graverij 9 te Drachten. Het pand heeft een oppervlakte van 111m² en een perceeloppervlakte van 192m² en heeft 6 kamers kamers waarvan 5 slaapkamers. De geschatte waarde van deze woning is € 150.000.

Bekijk alle woningen in De Venen

Gegevens van Eengezinswoning, tussenwoning

Bouwjaar
1964
Geschatte waarde
€ 150.000
Oppervlakte
111 m2
Inhoud
368 m3
Aantal kamers
6 kamers
Slaapkamers
5
Badkamers
1 badkamer en 1 apart toilet
Soort bouw
Bestaande bouw
Eigendomssituatie
Volle eigendom
Ligging
Aan rustige weg en vrij uitzicht
Tuin
Achtertuin en voortuin
Achtertuin
85 m² (13m diep en 6,5m breed)

Voorzieningen in de buurt

Boodschappen1,0 km
Grote supermarkt0,7 km
Cafetaria0,4 km
Restaurant1,0 km
Huisarts1,0 km
Ziekenhuis0,8 km
Kinderdagverblijf0,3 km
BSO0,7 km
Alle voorzieningen in De Venen

Binnenkijken bij Graverij 9 te Drachten

Meer meldingen in deze omgeving

Binnenkijken bij
Dinsdag 16-12-2025
De Bank 31, 9202VS Drachten

Binnenkijken bij
Zaterdag 13-12-2025
Leidijk 227, 9202TW Drachten

Nieuw bedrijf
December 2025
Sponturf 42, 9202MD Drachten

Nieuw bedrijf
December 2025
Splitting 142, 9202LJ Drachten

Binnenkijken bij
Dinsdag 2-12-2025
De Hage 26, 9202VM Drachten

Binnenkijken bij
Dinsdag 2-12-2025
Splitting 2, 9202LE Drachten

Binnenkijken bij
Dinsdag 2-12-2025
De Parken 18, 9202LR Drachten

Binnenkijken bij
Vrijdag 21-11-2025
Zuiderdwarsvaart 27, 9203HW Drachten

Direct een e-mail ontvangen bij nieuwe meldingen in deze regio?

Meld je dan GRATIS aan voor de Oozo Alert service voor De Venen

Instellen

Meer nieuws in De Venen

Weten hoe eenvoudig het is om af te vallen? Zonder pillen en smeersels en zonder je in het zweet te werken!
Kijk op eenvoudig-afvallen.nl

© 2012 - 2025 OOZO.nl - info@oozo.nl - Gegevens verwijderen? | Disclaimer | Privacy statement