Woning Raai 190 Drachten

Raai 190, 9202HX Drachten

Ontvang updates voor De Venen

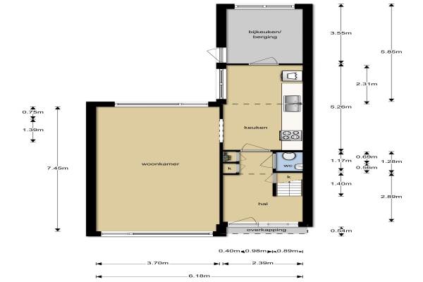
Het adres van deze woning uit 1974 is Raai 190 te Drachten. Het pand heeft 5 kamers kamers waarvan 4 slaapkamers. De geschatte waarde van deze woning is € 169.000.

Bekijk alle woningen in De Venen

Gegevens van Eengezinswoning, tussenwoning

Bouwjaar
1974
Geschatte waarde
€ 169.000
Oppervlakte
0 m2
Inhoud
419 m3
Aantal kamers
5 kamers
Slaapkamers
4
Badkamers
1 badkamer en 1 apart toilet
Soort bouw
Bestaande bouw
Eigendomssituatie
Volle eigendom
Ligging
In woonwijk en beschutte ligging
Tuin
Achtertuin en voortuin
Achtertuin
163 m² (25m diep en 6,5m breed)

Voorzieningen in de buurt

Boodschappen1,0 km
Grote supermarkt0,7 km
Cafetaria0,4 km
Restaurant1,0 km
Huisarts1,0 km
Ziekenhuis0,8 km
Kinderdagverblijf0,3 km
BSO0,7 km
Alle voorzieningen in De Venen

Binnenkijken bij Raai 190 te Drachten

Meer meldingen in deze omgeving

112 melding
Woensdag 31-12-2025 om 20:07
Veenscheiding, Drachten

Binnenkijken bij
Dinsdag 16-12-2025
De Bank 31, 9202VS Drachten

Binnenkijken bij
Zaterdag 13-12-2025
Leidijk 227, 9202TW Drachten

Nieuw bedrijf
December 2025
Sponturf 42, 9202MD Drachten

Nieuw bedrijf
December 2025
Splitting 142, 9202LJ Drachten

Binnenkijken bij
Dinsdag 2-12-2025
De Hage 26, 9202VM Drachten

Binnenkijken bij
Dinsdag 2-12-2025
Splitting 2, 9202LE Drachten

Binnenkijken bij
Dinsdag 2-12-2025
De Parken 18, 9202LR Drachten

Direct een e-mail ontvangen bij nieuwe meldingen in deze regio?

Meld je dan GRATIS aan voor de Oozo Alert service voor De Venen

Instellen

Meer nieuws in De Venen

Weten hoe eenvoudig het is om af te vallen? Zonder pillen en smeersels en zonder je in het zweet te werken!
Kijk op eenvoudig-afvallen.nl

© 2012 - 2026 OOZO.nl - info@oozo.nl - Gegevens verwijderen? | Disclaimer | Privacy statement