Woning Kleinzand 29 Drachten

Kleinzand 29, 9202XA Drachten

Ontvang updates voor De Wiken

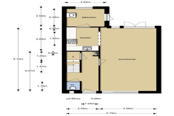
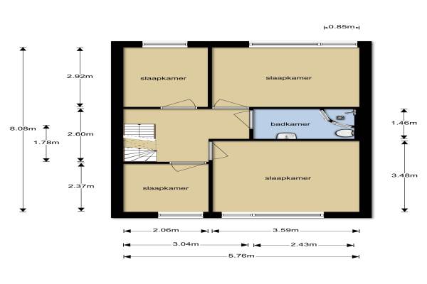
Het adres van deze woning uit 1965 is Kleinzand 29 te Drachten. Het pand heeft een oppervlakte van 115m² en een perceeloppervlakte van 144m² en heeft 6 kamers kamers waarvan 5 slaapkamers. De geschatte waarde van deze woning is € 142.000.

Bekijk alle woningen in De Wiken

Gegevens van Eengezinswoning, tussenwoning

Bouwjaar
1965
Geschatte waarde
€ 142.000
Oppervlakte
115 m2
Inhoud
401 m3
Aantal kamers
6 kamers
Slaapkamers
5
Badkamers
1 apart toilet
Soort bouw
Bestaande bouw
Eigendomssituatie
Volle eigendom
Ligging
Aan rustige weg, in woonwijk en beschutte ligging
Tuin
Achtertuin en voortuin
Achtertuin
60 m² (10m diep en 6m breed)

Voorzieningen in de buurt

Boodschappen0,6 km
Grote supermarkt0,6 km
Cafetaria0,5 km
Restaurant1,0 km
Huisarts0,5 km
Ziekenhuis1,7 km
Kinderdagverblijf0,5 km
BSO0,6 km
Alle voorzieningen in De Wiken

Binnenkijken bij Kleinzand 29 te Drachten

Meer meldingen in deze omgeving

Binnenkijken bij
Woensdag 3-12-2025
Hooglandswyk 119, 9202AD Drachten

Nieuw bedrijf
December 2025
Langewyk 361, 9202CP Drachten

Nieuw bedrijf
December 2025
Middelwyk 27, 9202GN Drachten

Binnenkijken bij
Zaterdag 29-11-2025
Spitael 35, 9202HB Drachten

Nieuw bedrijf
November 2025
Steenkerk 1, 9202JH Drachten

Binnenkijken bij
Dinsdag 25-11-2025
Bloemkamp 10, 9202CD Drachten

112 melding
Dinsdag 18-11-2025 om 20:09
Mariëngaard, Drachten

112 melding
Dinsdag 18-11-2025 om 19:41
Mariëngaard, Drachten

Direct een e-mail ontvangen bij nieuwe meldingen in deze regio?

Meld je dan GRATIS aan voor de Oozo Alert service voor De Wiken

Instellen

Meer nieuws in De Wiken

Weten hoe eenvoudig het is om af te vallen? Zonder pillen en smeersels en zonder je in het zweet te werken!
Kijk op eenvoudig-afvallen.nl

© 2012 - 2025 OOZO.nl - info@oozo.nl - Gegevens verwijderen? | Disclaimer | Privacy statement