Woning Ratelwacht 8 Drachten

Ratelwacht 8, 9201HC Drachten

Ontvang updates voor Noordoost

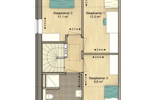
Het adres van deze woning uit 2023 is Ratelwacht 8 te Drachten. Het pand heeft een oppervlakte van 90m² en heeft 7 kamers kamers waarvan 3 slaapkamers. De geschatte waarde van deze woning is € 315.000.

Bekijk alle woningen in Noordoost

Gegevens van Eengezinswoning, halfvrijstaande woning

Bouwjaar
2023
Geschatte waarde
€ 315.000
Oppervlakte
90 m2
Inhoud
400 m3
Aantal kamers
7 kamers
Slaapkamers
3
Badkamers
1 badkamer en 1 apart toilet
Soort bouw
Nieuwbouw
Ligging
Aan rustige weg en in woonwijk
Tuin
Achtertuin
Achtertuin
120 m² (15 meter diep en 8 meter breed)

Voorzieningen in de buurt

Boodschappen0,4 km
Grote supermarkt0,5 km
Cafetaria0,4 km
Restaurant0,5 km
Huisarts0,4 km
Ziekenhuis2,1 km
Kinderdagverblijf0,5 km
BSO0,7 km
Alle voorzieningen in Noordoost

Binnenkijken bij Ratelwacht 8 te Drachten

Meer meldingen in deze omgeving

Binnenkijken bij
Vrijdag 23-1-2026
Schwartzenberghlaan 71, 9201KA Drachten

Faillissement
Woensdag 21-1-2026
Noordkade 49a, 9203CE Drachten

112 melding
Dinsdag 20-1-2026 om 22:06
Leeuwerikstraat, Drachten

112 melding
Maandag 19-1-2026 om 08:21
Vogelzang, Drachten

112 melding
Donderdag 1-1-2026 om 03:17
Lijsterstraat, Drachten

112 melding
Woensdag 31-12-2025 om 13:46
Kaatsveld, Drachten

Onroerend goed
Woensdag 31-12-2025
Stationsweg 231, 9201GN Drachten

Binnenkijken bij
Woensdag 31-12-2025
Torenstraat 55, 9201JS Drachten

Direct een e-mail ontvangen bij nieuwe meldingen in deze regio?

Meld je dan GRATIS aan voor de Oozo Alert service voor Noordoost

Instellen

Meer nieuws in Noordoost

Weten hoe eenvoudig het is om af te vallen? Zonder pillen en smeersels en zonder je in het zweet te werken!
Kijk op eenvoudig-afvallen.nl

© 2012 - 2026 OOZO.nl - info@oozo.nl - Gegevens verwijderen? | Disclaimer | Privacy statement