Woning Korte Baan 23 Drachten

Korte Baan 23, 9201HN Drachten

Ontvang updates voor Noordoost

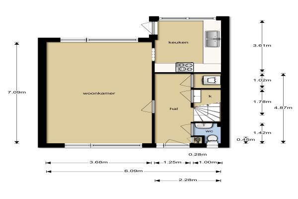
Het adres van deze woning uit 1958 is Korte Baan 23 te Drachten. Het pand heeft een oppervlakte van 90m² en een perceeloppervlakte van 302m² en heeft 5 kamers kamers waarvan 4 slaapkamers. De geschatte waarde van deze woning is € 157.500.

Bekijk alle woningen in Noordoost

Gegevens van Eengezinswoning, hoekwoning

Bouwjaar
1958
Geschatte waarde
€ 157.500
Oppervlakte
90 m2
Inhoud
343 m3
Aantal kamers
5 kamers
Slaapkamers
4
Badkamers
1 badkamer en 1 apart toilet
Soort bouw
Bestaande bouw
Eigendomssituatie
Volle eigendom
Ligging
In woonwijk
Tuin
Achtertuin en voortuin
Achtertuin
136 m² (0,17m diep en 0,08m breed)

Voorzieningen in de buurt

Boodschappen0,4 km
Grote supermarkt0,5 km
Cafetaria0,4 km
Restaurant0,5 km
Huisarts0,4 km
Ziekenhuis2,1 km
Kinderdagverblijf0,5 km
BSO0,7 km
Alle voorzieningen in Noordoost

Binnenkijken bij Korte Baan 23 te Drachten

Meer meldingen in deze omgeving

112 melding
Dinsdag 16-12-2025 om 16:02
Kievitstraat, 9201SN Drachten

Nieuw bedrijf
December 2025
Roerdompstraat 10, 9201SM Drachten

Nieuw bedrijf
December 2025
Nachtegaalstraat 94, 9203BZ Drachten

Nieuw bedrijf
December 2025
Winterkoninkjestraat 36, 9203BR Drachten

112 melding
Zondag 30-11-2025 om 22:21
Tipelkamp, 9201HT Drachten

112 melding
Zondag 30-11-2025 om 22:18
Tipelkamp, 9201HT Drachten

Faillissement
Vrijdag 28-11-2025
Noordkade 57, 9203CE Drachten

112 melding
Dinsdag 25-11-2025 om 12:14
Ringweg, Drachten

Direct een e-mail ontvangen bij nieuwe meldingen in deze regio?

Meld je dan GRATIS aan voor de Oozo Alert service voor Noordoost

Instellen

Meer nieuws in Noordoost

Weten hoe eenvoudig het is om af te vallen? Zonder pillen en smeersels en zonder je in het zweet te werken!
Kijk op eenvoudig-afvallen.nl

© 2012 - 2025 OOZO.nl - info@oozo.nl - Gegevens verwijderen? | Disclaimer | Privacy statement