Woning Suderom 57 Boornbergum

Suderom 57, 9212PR Boornbergum

Ontvang updates voor Boornbergum

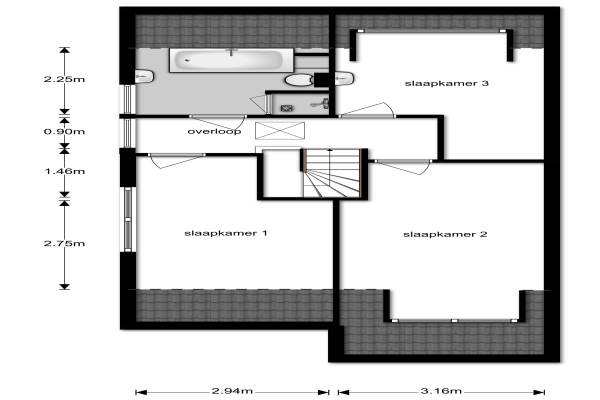
Het adres van deze woning uit 1974 is Suderom 57 te Boornbergum. Het pand heeft een oppervlakte van 111m² en een perceeloppervlakte van 319m² en heeft 4 kamers kamers waarvan 3 slaapkamers. De geschatte waarde van deze woning is € 187.500.

Bekijk alle woningen in Boornbergum

Gegevens van Eengezinswoning, 2-onder-1-kapwoning

Bouwjaar
1974
Geschatte waarde
€ 187.500
Oppervlakte
111 m2
Inhoud
389 m3
Aantal kamers
4 kamers
Slaapkamers
3
Badkamers
1 apart toilet
Soort bouw
Bestaande bouw
Eigendomssituatie
Volle eigendom
Ligging
Aan rustige weg, in woonwijk en beschutte ligging
Tuin
Achtertuin, voortuin en zonneterras
Achtertuin
81 m² (8,5m diep en 9,5m breed)

Voorzieningen in de buurt

Boodschappen0,5 km
Grote supermarkt0,7 km
Cafetaria0,6 km
Restaurant0,6 km
Huisarts0,6 km
Ziekenhuis6,3 km
Kinderdagverblijf0,6 km
BSO0,6 km
Alle voorzieningen in Boornbergum

Binnenkijken bij Suderom 57 te Boornbergum

Meer meldingen in deze omgeving

Binnenlands nieuws
Dinsdag 2-12-2025
Boornbergum

Binnenkijken bij
Vrijdag 28-11-2025
Bosschawei 66, 9212RH Boornbergum

Binnenlands nieuws
Woensdag 26-11-2025
Boornbergum

Binnenkijken bij
Dinsdag 25-11-2025
Krite 30, 9212VB Boornbergum

Nieuw bedrijf
November 2025
Boerekrookje 71, 9212RN Boornbergum

112 melding
Donderdag 20-11-2025 om 12:16
Nijewei, Boornbergum

Binnenlands nieuws
Maandag 17-11-2025
Boornbergum

Binnenlands nieuws
Zaterdag 15-11-2025
Boornbergum

Direct een e-mail ontvangen bij nieuwe meldingen in deze regio?

Meld je dan GRATIS aan voor de Oozo Alert service voor Boornbergum

Instellen

Meer nieuws in Boornbergum

Weten hoe eenvoudig het is om af te vallen? Zonder pillen en smeersels en zonder je in het zweet te werken!
Kijk op eenvoudig-afvallen.nl

© 2012 - 2025 OOZO.nl - info@oozo.nl - Gegevens verwijderen? | Disclaimer | Privacy statement