Woning Drachtster Heawei 41 De Veenhoop

Drachtster Heawei 41, 9215VS De Veenhoop

Ontvang updates voor De Veenhoop

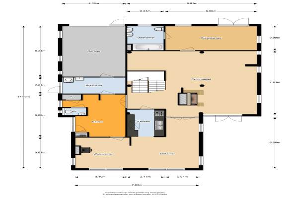
Het adres van deze woning uit 1938 is Drachtster Heawei 41 te De Veenhoop. Het pand heeft een oppervlakte van 239m² en een perceeloppervlakte van 2915m² en heeft 6 kamers kamers waarvan 4 slaapkamers. De geschatte waarde van deze woning is € 489.000.

Bekijk alle woningen in De Veenhoop

Gegevens van Woonboerderij, vrijstaande woning

Bouwjaar
1938
Geschatte waarde
€ 489.000
Oppervlakte
239 m2
Inhoud
1050 m3
Aantal kamers
6 kamers
Slaapkamers
4
Badkamers
2 badkamers en 1 apart toilet
Soort bouw
Bestaande bouw
Eigendomssituatie
Volle eigendom
Ligging
Aan water, vrij uitzicht, buiten bebouwde kom en landelijk gelegen
Tuin
Tuin rondom

Voorzieningen in de buurt

Boodschappen6,6 km
Grote supermarkt4,6 km
Cafetaria6,5 km
Restaurant1,3 km
Huisarts5,8 km
Ziekenhuis11,6 km
Kinderdagverblijf4,7 km
BSO4,9 km
Alle voorzieningen in De Veenhoop

Binnenkijken bij Drachtster Heawei 41 te De Veenhoop

Meer meldingen in deze omgeving

Binnenlands nieuws
Vrijdag 26-12-2025
De Veenhoop

Binnenkijken bij
Dinsdag 11-11-2025
Kraenlânswei 16A, 9215VZ De Veenhoop

Binnenkijken bij
Dinsdag 11-11-2025
Slûswei 8, 9215VX De Veenhoop

Binnenkijken bij
Zondag 19-10-2025
Kanaeldyk 25, 9215VT De Veenhoop

Binnenlands nieuws
Vrijdag 10-10-2025
De Veenhoop

Binnenlands nieuws
Vrijdag 5-9-2025
De Veenhoop

Binnenlands nieuws
Maandag 11-8-2025
De Veenhoop

Binnenlands nieuws
Dinsdag 29-7-2025
De Veenhoop

Direct een e-mail ontvangen bij nieuwe meldingen in deze regio?

Meld je dan GRATIS aan voor de Oozo Alert service voor De Veenhoop

Instellen

Meer nieuws in De Veenhoop

Weten hoe eenvoudig het is om af te vallen? Zonder pillen en smeersels en zonder je in het zweet te werken!
Kijk op eenvoudig-afvallen.nl

© 2012 - 2026 OOZO.nl - info@oozo.nl - Gegevens verwijderen? | Disclaimer | Privacy statement