Woning Heetakker 65 Soest

Heetakker 65, 3762AZ Soest

Ontvang updates voor De Eng Noord West

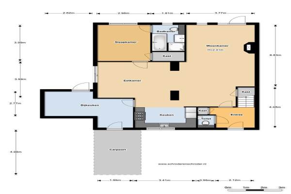
Het adres van deze woning uit 1993 is Heetakker 65 te Soest. Het pand heeft een oppervlakte van 145m² en een perceeloppervlakte van 270m² en heeft 5 kamers kamers waarvan 3 slaapkamers. De geschatte waarde van deze woning is € 475.000.

Bekijk alle woningen in De Eng Noord West

Gegevens van Bungalow, 2-onder-1-kapwoning (semi-bungalow)

Bouwjaar
1993
Geschatte waarde
€ 475.000
Oppervlakte
145 m2
Inhoud
457 m3
Aantal kamers
5 kamers
Slaapkamers
3
Badkamers
2 badkamers en 1 apart toilet
Soort bouw
Bestaande bouw
Eigendomssituatie
Volle eigendom
Ligging
Aan rustige weg en in woonwijk
Tuin
Achtertuin, voortuin en zijtuin
Achtertuin
62 m² (12,3m diep en 5m breed)

Voorzieningen in de buurt

Boodschappen0,4 km
Grote supermarkt0,7 km
Cafetaria1,0 km
Restaurant0,7 km
Huisarts0,9 km
Ziekenhuis5,1 km
Kinderdagverblijf0,5 km
BSO0,4 km
Alle voorzieningen in De Eng Noord West

Binnenkijken bij Heetakker 65 te Soest

Meer meldingen in deze omgeving

Nieuw bedrijf
Oktober 2025
Dalplein 100, 3762BR Soest

Binnenkijken bij
Donderdag 2-10-2025
Heetakker 51, 3762AZ Soest

Binnenkijken bij
Maandag 22-9-2025
Verlengde Talmalaan 37, 3762AB Soest

Binnenkijken bij
Vrijdag 19-9-2025
Dalplein 1, 3762BN Soest

112 melding
Donderdag 28-8-2025 om 00:49
Graanakker, Soest

Nieuw bedrijf
Juli 2025
Verlengde Talmalaan 27, 3762AB Soest

Nieuw bedrijf
Juli 2025
Heetakker 5, 3762AZ Soest

Binnenkijken bij
Dinsdag 1-7-2025
Heetakker 49, 3762AZ Soest

Direct een e-mail ontvangen bij nieuwe meldingen in deze regio?

Meld je dan GRATIS aan voor de Oozo Alert service voor De Eng Noord West

Instellen

Meer nieuws in De Eng Noord West

Weten hoe eenvoudig het is om af te vallen? Zonder pillen en smeersels en zonder je in het zweet te werken!
Kijk op eenvoudig-afvallen.nl

© 2012 - 2025 OOZO.nl - info@oozo.nl - Gegevens verwijderen? | Disclaimer | Privacy statement