Woning Haagwinde 24 Soest

Haagwinde 24, 3764TN Soest

Ontvang updates voor De Eng

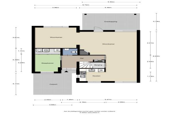
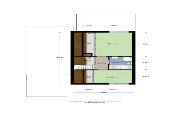
Het adres van deze woning uit 1993 is Haagwinde 24 te Soest. Het pand heeft een oppervlakte van 126m² en een perceeloppervlakte van 245m² en heeft 4 kamers kamers waarvan 3 slaapkamers. De geschatte waarde van deze woning is € 399.500.

Bekijk alle woningen in De Eng

Gegevens van Eengezinswoning, 2-onder-1-kapwoning

Bouwjaar
1993
Geschatte waarde
€ 399.500
Oppervlakte
126 m2
Inhoud
484 m3
Aantal kamers
4 kamers
Slaapkamers
3
Badkamers
1 badkamer en 1 apart toilet
Soort bouw
Bestaande bouw
Eigendomssituatie
Volle eigendom
Ligging
Aan rustige weg en in woonwijk
Tuin
Achtertuin en voortuin
Achtertuin
120 m² (12m diep en 10m breed)

Voorzieningen in de buurt

Boodschappen0,5 km
Grote supermarkt0,6 km
Cafetaria0,7 km
Restaurant0,5 km
Huisarts0,7 km
Ziekenhuis4,9 km
Kinderdagverblijf0,4 km
BSO0,4 km
Alle voorzieningen in De Eng

Binnenkijken bij Haagwinde 24 te Soest

Meer meldingen in deze omgeving

Nieuw bedrijf
November 2025
van Goyenlaan 60, 3764XK Soest

Nieuw bedrijf
November 2025
Boekweitland 103121, 3764ZK Soest

Nieuw bedrijf
November 2025
Rubenslaan 180, 3764VM Soest

Faillissement
Woensdag 26-11-2025
van de Veldeplantsoen 9, 3764BP Soest

Binnenkijken bij
Dinsdag 25-11-2025
Dalweg 5, 3764BT Soest

Binnenkijken bij
Vrijdag 21-11-2025
Vermeerlaan 73, 3764WC Soest

Nieuw bedrijf
November 2025
Hobbemalaan 30, 3764WJ Soest

Binnenkijken bij
Dinsdag 11-11-2025
van Goyenlaan 158, 3764XM Soest

Direct een e-mail ontvangen bij nieuwe meldingen in deze regio?

Meld je dan GRATIS aan voor de Oozo Alert service voor De Eng

Instellen

Meer nieuws in De Eng

Weten hoe eenvoudig het is om af te vallen? Zonder pillen en smeersels en zonder je in het zweet te werken!
Kijk op eenvoudig-afvallen.nl

© 2012 - 2025 OOZO.nl - info@oozo.nl - Gegevens verwijderen? | Disclaimer | Privacy statement