Woning Molenstraat 6 Soest

Molenstraat 6, 3764TG Soest

Ontvang updates voor De Eng

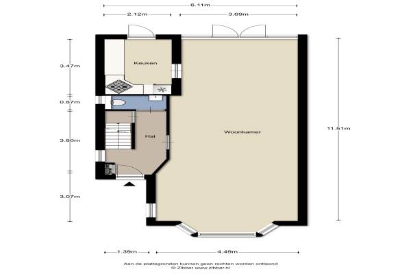
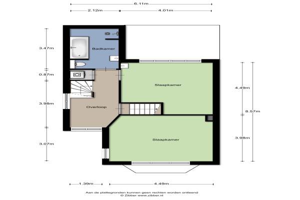
Het adres van deze woning uit 1926 is Molenstraat 6 te Soest. Het pand heeft een oppervlakte van 140m² en een perceeloppervlakte van 590m² en heeft 4 kamers kamers waarvan 3 slaapkamers. De geschatte waarde van deze woning is € 469.500.

Bekijk alle woningen in De Eng

Gegevens van Eengezinswoning, 2-onder-1-kapwoning

Bouwjaar
1926
Geschatte waarde
€ 469.500
Oppervlakte
140 m2
Inhoud
527 m3
Aantal kamers
4 kamers
Slaapkamers
3
Badkamers
1 badkamer
Soort bouw
Bestaande bouw
Eigendomssituatie
Volle eigendom
Ligging
Aan rustige weg en open ligging
Tuin
Achtertuin, voortuin en zijtuin
Achtertuin
352 m² (22m diep en 16m breed)

Voorzieningen in de buurt

Boodschappen0,5 km
Grote supermarkt0,6 km
Cafetaria0,7 km
Restaurant0,5 km
Huisarts0,7 km
Ziekenhuis4,9 km
Kinderdagverblijf0,4 km
BSO0,4 km
Alle voorzieningen in De Eng

Binnenkijken bij Molenstraat 6 te Soest

Meer meldingen in deze omgeving

112 melding
Vrijdag 23-1-2026 om 16:25
Saenredamplantsoen, Soest

112 melding
Vrijdag 23-1-2026 om 16:20
Saenredamplantsoen, Soest

112 melding
Donderdag 22-1-2026 om 21:46
Van Goyenlaan, Soest

Binnenkijken bij
Woensdag 21-1-2026
van Goyenlaan 204, 3764XN Soest

Binnenkijken bij
Zaterdag 17-1-2026
Albert Cuyplaan 75, 3764TP Soest

Binnenkijken bij
Dinsdag 13-1-2026
Rubenslaan 212, 3764VM Soest

Binnenkijken bij
Zaterdag 10-1-2026
van Goyenlaan 133, 3764XE Soest

Binnenkijken bij
Zaterdag 10-1-2026
Haagwinde 46, 3764TN Soest

Direct een e-mail ontvangen bij nieuwe meldingen in deze regio?

Meld je dan GRATIS aan voor de Oozo Alert service voor De Eng

Instellen

Meer nieuws in De Eng

Weten hoe eenvoudig het is om af te vallen? Zonder pillen en smeersels en zonder je in het zweet te werken!
Kijk op eenvoudig-afvallen.nl

© 2012 - 2026 OOZO.nl - info@oozo.nl - Gegevens verwijderen? | Disclaimer | Privacy statement