Woning Kornet 23 Soest

Kornet 23, 3766EE Soest

Ontvang updates voor De Zoom

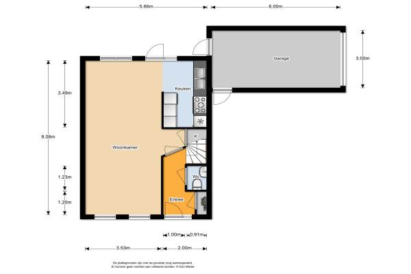
Het adres van deze woning uit 1978 is Kornet 23 te Soest. Het pand heeft een oppervlakte van 112m² en een perceeloppervlakte van 245m² en heeft 5 kamers kamers waarvan 4 slaapkamers. De geschatte waarde van deze woning is € 299.500.

Bekijk alle woningen in De Zoom

Gegevens van Eengezinswoning, hoekwoning

Bouwjaar
1978
Geschatte waarde
€ 299.500
Oppervlakte
112 m2
Inhoud
470 m3
Aantal kamers
5 kamers
Slaapkamers
4
Badkamers
1 apart toilet
Soort bouw
Bestaande bouw
Eigendomssituatie
Volle eigendom
Ligging
Aan rustige weg, in woonwijk, beschutte ligging en in bosrijke omgeving
Tuin
Achtertuin
Achtertuin
55 m² (0,1m diep en 0,06m breed)

Voorzieningen in de buurt

Boodschappen0,7 km
Grote supermarkt0,7 km
Cafetaria0,7 km
Restaurant0,6 km
Huisarts0,8 km
Ziekenhuis6,5 km
Kinderdagverblijf0,6 km
BSO0,6 km
Alle voorzieningen in De Zoom

Binnenkijken bij Kornet 23 te Soest

Meer meldingen in deze omgeving

Binnenkijken bij
Vrijdag 28-11-2025
Clemensstraat 54, 3766GX Soest

Nieuw bedrijf
November 2025
Luytenaarpad 73, 3766BN Soest

Nieuw bedrijf
November 2025
Reespoor 18, 3766JX Soest

Nieuw bedrijf
November 2025
Hazepad 219, 3766JS Soest

Nieuw bedrijf
November 2025
Pijperpad 41, 3766CB Soest

Nieuw bedrijf
November 2025
Di Lassostraat 57, 3766EB Soest

Nieuw bedrijf
November 2025
Hazepad 74, 3766JV Soest

Nieuw bedrijf
November 2025
Tamboerijn 31, 3766HA Soest

Direct een e-mail ontvangen bij nieuwe meldingen in deze regio?

Meld je dan GRATIS aan voor de Oozo Alert service voor De Zoom

Instellen

Meer nieuws in De Zoom

Weten hoe eenvoudig het is om af te vallen? Zonder pillen en smeersels en zonder je in het zweet te werken!
Kijk op eenvoudig-afvallen.nl

© 2012 - 2025 OOZO.nl - info@oozo.nl - Gegevens verwijderen? | Disclaimer | Privacy statement