Woning Pijperpad 47 Soest

Pijperpad 47, 3766CB Soest

Ontvang updates voor De Zoom

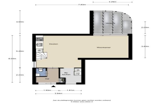
Het adres van deze woning uit 1976 is Pijperpad 47 te Soest. Het pand heeft een oppervlakte van 93m² en een perceeloppervlakte van 137m² en heeft 4 kamers kamers waarvan 3 slaapkamers. De geschatte waarde van deze woning is € 259.500.

Bekijk alle woningen in De Zoom

Gegevens van Eengezinswoning, tussenwoning

Bouwjaar
1976
Geschatte waarde
€ 259.500
Oppervlakte
93 m2
Inhoud
334 m3
Aantal kamers
4 kamers
Slaapkamers
3
Badkamers
1 badkamer en 1 apart toilet
Soort bouw
Bestaande bouw
Eigendomssituatie
Volle eigendom
Ligging
Aan water, aan rustige weg, in woonwijk en in bosrijke omgeving
Tuin
Achtertuin en voortuin
Achtertuin
72 m² (12m diep en 6m breed)

Voorzieningen in de buurt

Boodschappen0,7 km
Grote supermarkt0,7 km
Cafetaria0,7 km
Restaurant0,6 km
Huisarts0,8 km
Ziekenhuis6,5 km
Kinderdagverblijf0,6 km
BSO0,6 km
Alle voorzieningen in De Zoom

Binnenkijken bij Pijperpad 47 te Soest

Meer meldingen in deze omgeving

112 melding
Zaterdag 17-1-2026 om 14:06
Luytenaarpad, Soest

Binnenkijken bij
Zondag 11-1-2026
Honingbij 24, 3766JG Soest

112 melding
Donderdag 1-1-2026 om 16:26
Clemensstraat, 3766GX Soest

112 melding
Donderdag 1-1-2026 om 16:26
Clemensstraat, 3766GX Soest

Nieuw bedrijf
Januari 2026
Pijperpad 21, 3766CA Soest

112 melding
Woensdag 31-12-2025 om 03:02
Citer, Soest

112 melding
Woensdag 31-12-2025 om 03:02
Citer, Soest

Binnenkijken bij
Dinsdag 30-12-2025
Choristenpad 62, 3766BD Soest

Direct een e-mail ontvangen bij nieuwe meldingen in deze regio?

Meld je dan GRATIS aan voor de Oozo Alert service voor De Zoom

Instellen

Meer nieuws in De Zoom

Weten hoe eenvoudig het is om af te vallen? Zonder pillen en smeersels en zonder je in het zweet te werken!
Kijk op eenvoudig-afvallen.nl

© 2012 - 2026 OOZO.nl - info@oozo.nl - Gegevens verwijderen? | Disclaimer | Privacy statement